Beschreibung
Neubau in Maria Lanzendorf: Stilvolle Reihenhäuser mit Garten, Terrasse und zwei PKW-Stellplätzen – sofort bezugsfertig!
In einer ruhigen, naturnahen sowie Allee-artigen Seitengasse in Maria Lanzendorf gelegen, nur wenige Minuten südlich von Wien, entstanden drei modern konzipierte Reihenhäuser, die zeitgemäßen Wohnkomfort, nachhaltige Bauweise und hohe Lebensqualität perfekt verbinden.
Die drei charmanten belagsfertigen Häuser überzeugen mit einer großzügigen Wohnfläche von rund 136 Quadratmetern, gut geschnittenen Grundrissen, sonnigen Eigengärten zwischen ca. 38 m² und 73 m², einer 16 m² großen Terrasse sowie zwei PKW-Stellplätzen direkt vor der Haustür - per sofort bezugsfertig.
Ob als Familiennest oder ruhiger Rückzugsort – diese Neubauten bieten die ideale Kombination aus Wohnen im Grünen und Stadtnähe.
Massiv gebaut. Durchdacht geplant. Sofort bezugsfertig.
Gebaut in klassischer Ziegelmassivbauweise vom regionalen Baumeister, stehen die Häuser für Stabilität, Langlebigkeit und hervorragende Energieeffizienz. Eine moderne Luftwärmepumpe in Kombination mit Fußbodenheizung sorgt für umweltfreundliches und energieschonendes Heizen. Große Fensterflächen mit 3-fach Verglasung und außenliegender Beschattung schaffen eine helle, freundliche Atmosphäre und ein angenehmes Raumklima – zu jeder Jahreszeit. Direkt vor dem Haus befindet sich der einladende Eingangsbereich, ergänzt durch zwei PKW-Abstellplätze mit einer Gesamtfläche von rund 25 m² – stilvoll und funktional ausgeführt mit Rasengittersteinen.
Gegen Aufpreis können die belagsfertigen Häuser vom Baumeister ganz nach Ihren individuellen Wünschen – inklusive Bodenbelägen und Ausstattung – schlüsselfertig übergeben werden.
Die Raumaufteilung – ideal für Familien oder Paare mit Platzanspruch
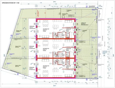
Erdgeschoss – offen, einladend und funktional:
Bereits beim Betreten empfängt Sie ein heller Vorraum (ca. 8,5 m²), der ausreichend Platz für Garderobe und Stauraum bietet. Ein praktischer Abstellraum (ca. 6,3 m²) schafft Ordnung für Alltagsutensilien. Das separate Gäste-WC rundet die Funktionalität des Erdgeschosses ab.
Herzstück dieses Geschosses ist die großzügige Wohnküche mit rund 53,4 m² – mit direktem Zugang zur ca. 16 m² großen Terrasse und dem eigenen nach südwesten ausgerichteten Garten mit Terrasse. Hier spielt sich das Leben ab – Kochen, Essen, Entspannen, Feiern oder einfach nur den Blick ins Grüne genießen. Die privaten Gartenflächen sind durch elegante Doppelstabmattenzäune voneinander getrennt – eine moderne und langlebige Lösung, die Privatsphäre schafft und gleichzeitig ein gepflegtes Gesamtbild garantiert.
Obergeschoss – Ruhebereich mit Privatsphäre:
Im oberen Stockwerk erwartet Sie ein durchdachtes Raumkonzept: drei separate Schlafzimmer (ca. 14, 14,5 und 16 m²) bieten genügend Platz für die Familie, Homeoffice oder Gäste. Ein eigenes Ankleidezimmer (ca. 5,8 m²) sorgt für Ordnung, das stilvolle Badezimmer mit Fenster (ca. 8 m²) lädt mit Badewanne und/oder Dusche zum Wohlfühlen ein. Ein weiteres WC im Badezimmer ergänzt das Raumangebot auf dieser Ebene.
Die Highlights auf einen Blick
- 
	Bezugsfertig ab sofort – ohne Baustellenstress direkt einziehen 
- 
	136 m² Wohnfläche auf zwei Ebenen 
- 
	Großzügiger Wohn-/Essbereich mit rund 54 m² – das Herzstück des Hauses 
- 
	3 helle Schlafzimmer und zusätzlicher Walk-In-Kleiderschrank im Master Bedroom 
- 
	Moderne Luftwärmepumpe & Fußbodenheizung – energieeffizient und nachhaltig 
- 
	3-fach verglaste Fenster & außenliegender Sonnenschutz 
- 
	Ziegelmassiv-Bauweise – langlebig & hochwertig 
- 
	Zwei KFZ-Stellplätze pro Einheit direkt vor der Haustür 
Die Raumaufteilung – durchdacht & familienfreundlich
Erdgeschoss:
- 
	Großzügiger Eingangsbereich mit Vorraum (8,56 m²) 
- 
	Abstellraum (6,29 m²) für praktischen Stauraum 
- 
	Gäste-WC (1,73 m²) 
- 
	Helles, offenes Wohn-/Esszimmer (53,42 m²) mit Zugang zur Terrasse 
- 
	Terrasse (ca. 16 m²) mit direktem Übergang in den Garten 
Obergeschoss:
- 
	Zentraler Vorraum (7,13 m²) 
- 
	3 Schlafzimmer (ca. 14–16 m²) – perfekt für Familie, Homeoffice oder Gäste 
- 
	Badezimmer (8,08 m²) mit Badewanne und Dusche und WC 
- 
	Praktischer Schrankraum (5,80 m²) 
- 
	Zugang zum Balkon (7 m²) – für einen entspannten Ausblick 
Individuelle Freiflächen – Ihr eigener Platz im Grünen
- 
	Haus 1: Eigengarten mit rund 73 m² 
- 
	Haus 2: Eigengarten mit rund 43 m² 
- 
	Haus 3: Eigengarten mit rund 38 m² 
Alle Häuser verfügen zusätzlich über eine südwestlich ausgerichtete Terrasse im Erdgeschoss mit ca. 16 m², ideal für gesellige Stunden oder ruhige Sonnenmomente.
Wohnen in Maria Lanzendorf – Natur. Nähe. Lebensqualität.
Maria Lanzendorf liegt eingebettet zwischen Feldern, Wiesen und dem Wiener Stadtrand. Die Umgebung ist ruhig, grün und familienfreundlich – mit viel Raum für Spaziergänge, Sport und Entspannung. Gleichzeitig profitieren Sie von einer ausgezeichneten Verkehrsanbindung: In nur ca. 20 Minuten erreichen Sie mit dem Auto die Wiener Innenstadt. Auch Bus und Bahn befinden sich in Reichweite.
Kindergärten, Schulen, Einkaufsmöglichkeiten und Nahversorgung sind im Ort bzw. in unmittelbarer Umgebung vorhanden. Ein perfekter Ort für Menschen, die entspannt wohnen und gleichzeitig gut angebunden bleiben möchten.
Qualität trifft Lebensgefühl
Diese sofort bezugsfertigen Reihenhäuser welche vom regionalen Baumeister errichtet wurden verbinden alle Vorteile modernen Wohnens: großzügige Raumaufteilung, lichtdurchflutete Fensterflächen, energieeffiziente Haustechnik, ruhig ausgerichtete Freiflächen – und das alles in einer wenig frequentierten Straße die einer Allee ähnelt. Ihr ruhig und gut angebundenes Wohnumfeld nahe Wien.
Preise & Flächen:
- 
	Haus 1: 136 m² Wohnfläche, 4 Zimmer, 2 PKW-Stellplätze, 16 m² Terrasse, 73 m² Garten – EUR 569.000,- 
- 
	Haus 2: 136 m² Wohnfläche, 4 Zimmer, 2 PKW-Stellplätze, 16 m² Terrasse, 43 m² Garten – EUR 556.100,- 
- 
	Haus 3: 136 m² Wohnfläche, 4 Zimmer, 2 PKW-Stellplätze, 16 m² Terrasse, 37 m² Garten – EUR 549.400,- 
Lassen Sie sich diese Gelegenheit nicht entgehen und sichern Sie sich Ihr neues Zuhause in idyllischer Ruhelage mit großzügigem Wohnkomfort.
Wir beraten Sie gerne persönlich und begleiten Sie auf dem Weg zu Ihrer Traumimmobilie! Wir freuen uns auf Ihre Anfrage.
Wir weisen darauf hin, dass zwischen dem Vermittler und dem zu vermittelnden Dritten ein familiäres oder wirtschaftliches Naheverhältnis besteht.
Der Vermittler ist als Doppelmakler tätig.
Pläne
Lagebeschreibung
2326 Maria Lanzendorf
 
                                     
                             
                            

 
                    













