Beschreibung
Nur € 174.750,-- baugenehmigt pro Wohneinheit! DIESES PROJEKT KANN SOFORT UMGESETZT WERDEN!
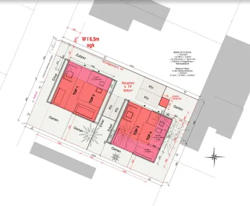
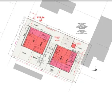
Angeboten wird ein baugenehmigtes Bauprojekt mit 4 Familienwohneinheiten. Zwei Doppelhäuser mit je 3 Geschoßebenen mit Eigengärten, Terrassen und PKW-Stellflächen. Der Baugrund befindet sich in sehr ruhiger und grüner Wohnlage, umgeben von Einfamilienhäusern. Über die A23 ist die schnelle Erreichbarkeit gegeben. Das Grundstück ist eben und frei von Bestandsgebäuden (keine Abbrucharbeiten)
Gerne steht Ihnen Herr Alexander Ringsmuth, für weitere Fragen bzw. flexibel gestaltbare Besichtigungstermine unter 0676 842 055 100 zur Verfügung.
Irrtum und Änderungen vorbehalten!
Hinweis gemäß Energieausweisvorlagegesetz: Ein Energieausweis wurde vom Eigentümer bzw. Verkäufer, nach unserer Aufklärung über die generell geltende Vorlagepflicht, sowie Aufforderung zu seiner Erstellung noch nicht vorgelegt. Daher gilt zumindest eine dem Alter und der Art des Gebäudes entsprechende Gesamtenergieeffizienz als vereinbart. Wir übernehmen keinerlei Gewähr oder Haftung für die tatsächliche Energieeffizienz der angebotenen Immobilie.
Wir weisen darauf hin, dass zwischen dem Vermittler und dem zu vermittelnden Dritten ein familiäres oder wirtschaftliches Naheverhältnis besteht.
Der Vermittler ist als Doppelmakler tätig.
Pläne
Lagebeschreibung
Badeteich Hirschstetten ca. 25 Gehminuten entfernt Libellenteich Motorikpark 1220


