Beschreibung
Exklusive Reihen- und Doppelhäuser am idyllischen Hunyadi Park mit Blick in den Park im ALTORT MARIA ENZERSDORF!
Südlich von Wien im Altort von Maria Enzersdorf, in zentraler Lage, werden derzeit auf einer Fläche von über 3.000 m² 15 Doppel - und Reihenhäuser in belagsfertiger oder schlüsselfertiger Ausführung von ca. 98 m² - ca. 117 m² Wohnflächen mit Gärten, Terrassen, modernster Ausstattung und ökologischer Luftwärmepumpe errichtet.
Die Fertigstellung der Häuser ist für November 2025 geplant, Übergabe Dezember 2025 (mit Vorbehalt).
Besondere Highlights sind die durchdachte Raumplanung und die hochwertigen Materialen. Alle Häuser verteilen sich auf drei Ebenen und verfügen über 4 Zimmer sowie 2 Bäder, perfekt für Familien die ländlicher wohnen und trotzdem alles fußläufig erreichen wollen.
Die herrliche Wohnruhelage zeichnet sich durch einen idyllischen Parkblick (Schloss Hunyadi), drei großflächige Parks in unmittelbarer Nähe sowie eine gute öffentliche Anbindung aus. Außerdem ist das Naherholungsgebiet um die Burg Liechtenstein zu Fuß erreichbar mit einem riesigen Kinderspielplatz und zahlreichen Gastronomiemöglichkeiten.
Die Volksschule, Hort und der Kindergarten sind in einer Minute zu Fuß erreichbar, alles in einem Gebäude.
Höhere Schulen sind gut mit dem Bus (Station 1 min entfernt) nach Mödling, Perchtoldsdorf erreichbar.
Alle Objekte werden provisionsfrei verkauft und können auch als Anlageobjekt erworben werden.
Bei den Fotos handelt es sich teils um Visualisierungen, derzeitiger Zustand der Häuser ist belagsfertig, lediglich ein Haus ist schlüsselfertig ausgebaut worden.
© Fotos von Fotografin Irene Schanda
Die einzelnen Häuser werden ohne Tiefgaragenstellplatz verkauft, den Käufern steht es aber frei, pro Haus zwei Stellplätze a` € 25.000,-- zu erwerben. Es besteht auch die Möglichkeit, einen Tiefgaragenstellplatz anzumieten (statt Kauf).
Hochwertige Ausstattung
* Fußbodenheizung
* Küchenanschlüsse vorhanden
* Tiefgarage
* Luftwärmepumpe
* Fahrradraum
* Doppel- / Mehrfachverglasung
* Kinderspielplatz
Verfügbare Einheiten
* Doppelhaushälfte Top 1: Wohnfläche ca. 114,93 m², Gartenterrasse ca. 23,78m², Garten ca. 80,64 m², KP € 764.900,-- belagsfertig; KP € 814.900,-- schlüsselfertig
* Doppelhaushälfte Top 2: Wohnfläche ca. 114,96 m², Gartenterrasse ca. 23,78 m², Garten ca. 55,23, KP € 749.500,-- belagsfertig; KP € 799.500,-- schlüsselfertig
* Reiheneckhaus Top 3: Wohnfläche ca. 102,97 m², Gartenterrasse ca. 24,81 m², Terrasse ca. 13,17 m², Garten ca. 134,5 m², KP € 743.300,--belagsfertig; KP € 783.300.-- schlüsselfertig
* Reihenhaus Top 4: Wohnfläche ca. 108,52 m², Gartenterrasse ca. 24,57 m², Terrasse ca. 8,93 m², Garten ca. 34,69 m², KP € 682.900,--belagsfertig; KP € 722.900,-- schlüsselfertig
* Reihenhaus Top 5: Wohnfläche ca. 108,53m², Gartenterrasse ca. 24,25 m², Terrasse ca. 8,93 m², Garten ca.34,28 m², KP € 682.700,-- belagsfertig; KP € 722.700,-- schlüsselfertig
* Reiheneckhaus Top 6: Wohnfläche ca. 99,31 m², Gartenterrasse ca. 24,81 m², Terrasse ca. 17,51 m², Garten ca. 128,6 m², KP € 707.700,--belagsfertig; KP € 747.700,-- schlüsselfertig
* Reiheneckhaus Top 7: Wohnfläche ca. 103,00 m², Gartenterrasse ca. 24,80m², Terrasse ca. 13,35 m², Garten ca. 101,15 m², VERKAUFT!
* Reihenmittelhaus Top 8: Wohnfläche ca. 108,53 m², Gartenterrasse ca. 24,25 m², Terrasse ca. 8,93 m², Garten ca. 52,81 m², KP € 695.500,--belagsfertig; KP € 735.500,-- schlüsselfertig
* Reiheneckhaus Top 9: Wohnfläche ca. 103,00 m², Gartenterrasse ca. 24,80 m², Terrasse ca. 13,45 m², Garten ca. 83,77 m², KP € 698.900,--; KP € 738.900,-- schlüsselfertig
* Doppelhaushälfte Top 10: Wohnfläche ca. 114,91 m², Gartenterrasse ca. 23,78 m², Garten ca. 45,82 m², KP € 720.400,--; KP €770.400,-- schlüsselfertig
* Doppelhaushälfte Top 11: Wohnfläche ca. 114,93 m², Gartenterrasse ca. 23,78 m², Garten ca. 68,83 m², KP € 732.900,--; KP € 782,900,-- schlüsselfertig
* Doppelhaushälfte Top 12: Wohnfläche ca. 112,64 m², Gartenterrasse ca. 23,78 m², Garten ca. 80,68 m², KP € 798.800,--; KP € 848,800,-- schlüsselfertig
* Doppelhaushälfte Top 13: Wohnfläche ca. 113,44 m², Gartenterrasse ca. 23,78 m², Garten ca. 45,31 m², KP € 777.200,--; KP € 827,200,-- schlüsselfertig
* Doppelhaushälfte Top 14: Wohnfläche ca. 113,45 m², Gartenterrasse ca. 23,78 m², Garten ca. 71,09 m², KP € 794.800,--; KP € 844.800,-- schlüsselfertig
* Doppelhaushälfte Top 15: Wohnfläche ca. 113,46 m², Gartenterrasse ca. 23,78 m², Garten ca.105,98 m², KP € 823.100,--; KP € 873.100,-- schlüsselfertig
Bezug: Dezember 2025 (mit Vorbehalt)
Es handelt sich um ein Projekt der Raiffeisen WohnBau.
Lage/Öffentliche Anbindung
Die U6 erreicht man mit der Schnellbahn in nur ca. 14 Min. Knapp 20 Minuten sind es bis zur U-Bahnlinie U1 mit weiteren Anschlussmöglichkeiten an die innerstädtischen Verkehrsmittel. Die Autobahnanschlussstelle A21 - A2 ist in 9 Minuten mit dem PKW erreichbar.
Die Wohnruhelage zeichnet sich durch einen idyllischen Parkblick und drei großflächige Parks in unmittelbarer Nähe aus. Ebenso ist ein Schulzentrum fußläufig, sowie diverse Schulen für alle Altersklassen mit Bussen erreichbar.
Energieausweise/gültig bis 23.3.2033
* Haus 1, 2: HWB 34,0 kWh/m²a, fGee 0,58
* Haus 3, 4, 5, 6: HWB 34,7 kWh/m²a, fGee 0,55
* Haus 7, 8, 9: HWB 34,7 kWh/m²a, fGee 0,57
* Haus 10, 11: HWB 31,1 kWh/m²a, fGee 0,57
* Haus 12, 13: HWB 33,3 kWh/m² a, fGee 0,56
* Haus 14, 15: HWB 33,3 kWh/m²a, fGee 0,56
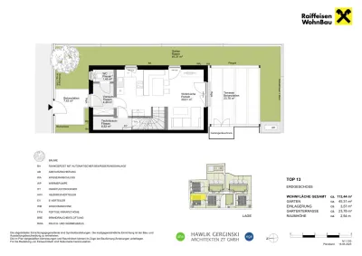
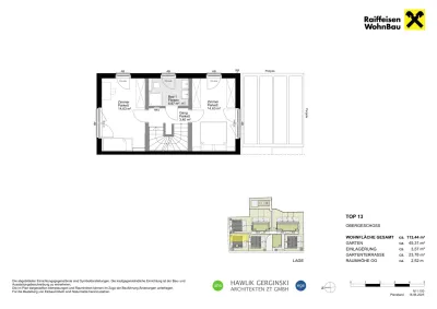
Eckdaten Doppelhaushälfte Top 13:
* Wohnfläche ca. 113,11 m²
* Gartenterrasse ca. 23,78 m²
* Garten ca. 44,13 m²
* 4 Zimmer
* 2 Bäder
* 2 WC´s
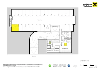
* 2 Tiefgaragenplätze
Fertigstellung November 25/Übergabe Dezember 25 (mit Vorbehalt)
Kaufpreis € 777.200,--
Monatliche Betriebskosten:
Betriebskosten allgemein: € 150,57 +10% USt.
Rücklage monatlich: € 61,27
Betriebskosten gesamt inkl. USt. pro Monat: € 226,90
WW, Strom und Heizung werden separat nach Verbrauch verrechnet.
Wir weisen darauf hin, dass zwischen dem Vermittler und dem zu vermittelnden Dritten ein familiäres oder wirtschaftliches Naheverhältnis besteht.
Pläne
Anbieter kontaktieren
Weitere Objekte in diesem Projekt
Exklusive Reihen- und Doppelhäuser am idyllischen Hunyadi Park mit Blick in den Park im ALTORT MARIA ENZERSDORF!
Wohnfläche
Zimmer
Kaufpreis
Exklusive Reihen- und Doppelhäuser am idyllischen Hunyadi Park mit Blick in den Park im ALTORT MARIA ENZERSDORF!
Wohnfläche
Zimmer
Kaufpreis
Exklusive Reihen- und Doppelhäuser am idyllischen Hunyadi Park mit Blick in den Park im ALTORT MARIA ENZERSDORF!
Wohnfläche
Zimmer
Kaufpreis
Exklusive Reihen- und Doppelhäuser am idyllischen Hunyadi Park mit Blick in den Park im ALTORT MARIA ENZERSDORF!
Wohnfläche
Zimmer
Kaufpreis






















