Beschreibung
RIVERGATE - Moderne Bürofläche (ca. 351m²) in 1200 ab Dezember 25!
Das RIVERGATE ist ein Office Center der neuen Generation. Bestechend in der Form, großzügig in der Gestaltung, vorbildlich im Energiekonzept. Das Projekt bietet rund 50.000 m² Mietfläche für Büros, Shops und Restaurants. Die ausgezeichnete Infrastruktur und die niedrigen Betriebskosten überzeugen auf der ganzen Linie.
Auch der erstklassige Standort am Handelskai spricht für sich: perfekte Verkehrsanbindung, unmittelbare Nachbarschaft zur Millennium City, freier Blick auf die Donau und die Wiener Weinberge.
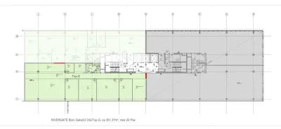
Zur Vermietung gelangt ab Dezember 25 eine moderne Bürofläche mit ca. 351 m² Nutzfläche im 2.OG des Rivergate in 1200 Wien.
Eckdaten/2.OG/Top G
* Nutzfläche ca. 351 m²
* Miete dzt. netto: € 14,90 p.m²/p.M.
* Betriebskosten dzt. netto: € 4,10/p.m²/p.M.
Alle Preise verstehen sich zzgl. 20% USt.
Kaution: 3-6 BMM (je nach Bonität)
Provision: 3 BMM zzgl. 20% USt
Bezug: Dezember 25
Mietvertrag: Befristet nach Vereinbarung
Lagerflächen in verschiedenen Größen stehen in den Untergeschossen zur Anmietung zur Verfügung. Mietpreis ab € 8,50 /p.m²/Monat zzgl. BK/NK.
Erwähnenswert:
* Als erstes Gebäude Österreichs wurde das Rivergate mit dem WiredScore Zertifikat in Platin ausgezeichnet. Damit ist der Bürokomplex "best-in-class" in Bezug auf Konnektivität, digitale Infrastruktur und Zukunftssicherheit.
* Für seine Gebäudeökologie mit U.S. LEED Platin ausgezeichnet
* Top Architektur
* Hervorragende Infrastruktur
* Optimale Verkehrsanbindung
* Höchster Anspruch an Gebäudeökologie
Architektur
Das RIVERGATE steht für Architektur mit Wiedererkennungswert: offene, großzügige und klar dimensionierte Baukörper, entworfen von den Architekten Auer + Weber + Assoziierte aus Stuttgart.
Die neue Landmarke an der Donau erinnert an zwei gegenüberliegende Segel: Gate 1 mit zwölf Obergeschoßen und Gate 2 mit acht Obergeschoßen schaffen eine architektonische Nähe zum Fluss.
Eine großzügige Verglasung umhüllt die Stahlbetonskelettkonstruktion und sorgt für transparente Leichtigkeit. Die gekrümmte Fassade und die unterschiedlichen Raumtiefen ermöglichen eine flexible Gebäudenutzung.
Ausstattung
* Öffenbare Fenster
* Sonnen- und Blendschutz innen- oder außenliegend
* Doppelboden inkl. Bodentanks
* Hochwertige Teppichfliesen
* Leichtbauwände
* Ergonomisches Beleuchtungskonzept
* Teeküchen (Anschlüsse vorbereitet)
* LAN-Raum (Anschlüsse vorbereitet)
* Sanitärgruppen
* Fahrradabstellplätze und Duschen stehen gegen einen geringen Aufpreis zur Verfügung.
Praktisch und von bester Qualität: Die Ausstattung des RIVERGATE garantiert komfortables Arbeiten.
Parken
Freie Stellplätze: JA
Stellplatzschlüssel: 1 Stellplatz pro 100m²
Miete Pkw-Stellplatz: ab € 140,--/Stück
Verkehrsanbindung
Das Office Center am Handelskai liegt nur wenige Meter von U-Bahn, S-Bahnen, Bus- und Straßenbahnstationen entfernt. Die Wiener Innenstadt und der zum Flughafen sind schnell zu erreichen. Mit dem PKW ist das Bürocenter optimal an die A22 und A23 angebunden.
Wir weisen darauf hin, dass zwischen dem Vermittler und dem zu vermittelnden Dritten ein familiäres oder wirtschaftliches Naheverhältnis besteht.
Der Vermittler ist als Doppelmakler tätig.
Pläne




