Beschreibung
In der zentrumsnahen Wintergasse 39 im beliebten Purkersdorf, errichten wir eine moderne Wohnhausanlage. Diese fügt sich harmonisch in den Hang ein, besteht aus 4 Wohnhäusern mit insgesamt 48 Wohnungen (2-, 3-, 4- und 5-Zimmer Wohnungen), 74 KFZ-Tiefgaragenplätzen, sowie 8 Stellplätzen für Motorräder.
Fertigstellung: voraussichtlich Ende April 2027
PROVISIONSFREI vom Bauträger
Das Team von Geiger Immobilien freut sich auf Ihre Anfrage!
Lagebeschreibung
Purkersdorf liegt an der westlichen Grenze zu Wien, direkt am Wienerwald. Zur Bahn, welche Sie in circa 20 Minuten zum Westbahnhof nach Wien bringt, sind es nur 9 Gehminuten. Eine Vielzahl an Schulen (VS, BG, BRG, VHS, Mittelschule, Musikschule), Fachärzte, Supermärkte sowie nette Lokale befinden sich ebenfalls in Gehweite. Das Auhofcenter mit zahlreichen Geschäften ist mit dem Auto in 10 Minuten erreichbar.
Anbieter kontaktieren
Weitere Objekte in diesem Projekt
Attraktive 3-Zimmer-Wohnung mit großer Terrasse - Top 1.09
Wohnfläche
Zimmer
Kaufpreis
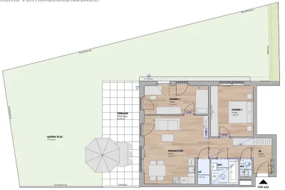
ERSTBEZUG: 4-Zimmer Wohnung mit Loggia - Top 4.03
Wohnfläche
Zimmer
Kaufpreis
Tolle 3-Zimmer-Wohnung am Südhang - Top 4.04
Wohnfläche
Zimmer
Kaufpreis
Perfekt für Anleger: 2-Zimmer-Wohnung - Top 2.11
Wohnfläche
Zimmer
Kaufpreis













