Beschreibung
Gartenwohnung zum selbst Sanieren - Chance auf leistbares Eigentum www.riedersbach.com
Ein Wohnhaus aus den 1950er Jahren mit nur 4 weiteren Parteien im Stiegenhaus wurde 2024 saniert und diese Gartenwohnung wird verkauft.
Das Haus wurde vom Verkäufer wärmeisoliert, dreifachverglaste Fenster wurden eingebaut, alle Leitungen bis zur Wohnung wurden neu hergestellt. Die Parkplätze werden noch errichtet und können extra erworben werden, ebenso stehen Garagen zum Verkauf. Eine neue Wohnungseingangstüre wird eingebaut, die Treppe in den Privatgarten wird vom Verkäufer hergestellt.
Die Wohnung befindet sich innen in einem unsanierten Zustand, der sonstige Innenausbau erfolgt durch den Käufer: Badsanierung, Kontrolle Elektrik, Heizkörper und Leitungen in der Wohnung erneuern, Bodenbeläge erneuern, Wände verspachteln und malen
Bauherren oder Handwerker können hier günstig eine Wohnung für sich sanieren. Investoren sichern sich als Vermieter hohe Abschreibungen und sparen 20% der Sanierungskosten durch Abzug der Vorsteuer. Wir machen gerne eine Erstberatung zu solchen Steuerfragen.
Flexible Grundrisse für Singles, Paare und Kleinfamilien auf www.riedersbach.com
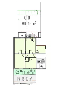
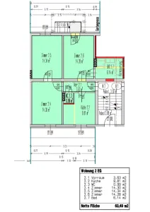
Die Gartenwohnung bietet drei Zimmer, dazu Küche mit Esstisch, einen Privatgarten, Bad und WC getrennt und jede Menge Nebenflächen (Waschküche, großes Kellerabteil, Fahrradraum).
Die beigefügten Grundrisse werden baugenehmigt und parifiziert verkauft. Sie können diese aber jederzeit selbst abändern. Durch die vorhandenen Zwischenmauern sind Änderungen technisch einfach möglich.
Verwirklichen Sie ihre eigenen Grundrisse mit den Böden und Fliesen, die Ihnen selbst gefallen.
Günstige regionale Handwerker werden auf Wunsch gratis vermittelt.
Es sind auch größere oder kleinere Wohnungen vorhanden. Auch günstigere Balkonwohnungen ohne Garten im ersten Stock.
Leistbare Grünruhelage eine halbe Stunde nördlich von Salzburg - www.riedersbach.com
Der Ortsteil Riedersbach in St Pantaleon liegt knapp nach der Salzburger Landesgrenze im Innviertel und ist genau 30 Minuten vom Stadtzentrum von Salzburg entfernt. Mit der Lokalbahn sind es 41 Minuten ohne Umsteigen.
Supermarkt, Gastronomie, Kindergarten und Volksschule, Lokalbahnanschluss - alles ist fußläufig erreichbar. Apotheke, Fachärzte, Metzgerei, Bäcker, zwei weitere Supermärkte sind im Nachbarort Ostermiething zB mit dem Fahrrad in 9 Minuten erreichbar.
Das Wohnviertel Riedersbach erfährt durch mehrere Sanierungen einen deutlichen Aufschwung. Kaufen Sie provisionsfrei direkt vom Eigentümer.
Diese Immobilie liegt deutlich von der Landesstraße entfernt und ist daher sehr ruhig gelegen.
Dieses Angebot ist freibleibend.
Derzeit gültige Finanzierungsregeln in Österreich für diese Wohnung (ohne Sanierungskosten):
1. Mindestens 20 Prozent Eigenkapital (=33.800 EUR)
2. Monatsrate maximal 40 Prozent des Haushaltseinkommens
Pläne





















