Beschreibung
Unzählige Möglichkeiten bietet diese erst 2002 -2005 errichtete Wohlfühloase im unmittelbaren Einzugsgebiet der Sonnentherme. Bestehend aus 2.600m² Nutzfläche mit 900m² Teichanlage samt eigenem Brunnen auf ca. 15.000m² eingezäunter Gartenanlage, sowie 3.000m² Extra-Grundstück.
Ob wie bisher als Hotel Garni, als Seminarhotel, exklusive Seniorenresidenz, Rehabilitationszentrum für Long-Covid-Betroffene oder Burnout-Patienten hervorragend geeignet.
Bestimmt auch interessant für renommierte Busunternehmen, welche ihren Reisegästen nach entspannendem Wellnesstag, abendlichem Besuch der umliegenden kulturellen Angebote oder Buschenschänken, einem Absacker in der Hotelbar, die Übernachtung im firmeneigenen Hotel anbieten möchten.
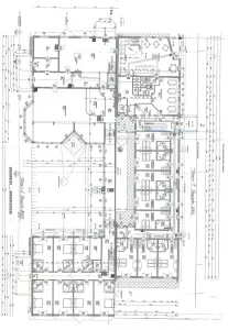
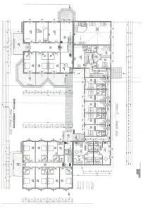
Im Erdgeschoss: Eingangsbereich mit Rezeption und Kamin, Frühstücksraum mit angeschlossener Frühstücksküche, Kinderraum, Schankraum, Technikräume, Lager- und Abstellräume, Toiletten, 15 Doppelzimmer teilweise mit Ausgang ins geschützte Atrium im Innenhof.
Im Obergeschoss: Seminarraum, Massageraum, Sauna, Solarium, Fitnessraum, 15 Doppelzimmer teilweise mit Balkon, 3 Apartments mit 42m², 48m², 50m², Lager- und Abstellräume.
Im Dachgeschoss: zwei großzügige Wohnungen mit je ca. 210m² Nutzfläche und 11m² Loggia.
Separates freistehendes Haus am Teich: 150m² Wohnfläche auf einer Ebene direkt hinter dem Teich, eingeteilt in: Schlafzimmer, Schrankraum, offener Koch- und Wohnbereich samt großer Glasschiebetüren auf die 44m² Sonnenterrasse, Bad, WC, Technik- und Geräteraum, Carport. Beheizt wird das Haus elektrisch und mit zentralem Specksteinofen.
Genügend Parkflächen für PKW und Reisebusse sowie ein separates, privates Wohnhaus mit ca. 150m² Wohnfläche und eigener Zufahrt stehen ebenfalls zur Verfügung.
Pläne
Lagebeschreibung
Lutzmannsburg liegt ca. 100km südlich von Wien im Bezirk Oberpullendorf und erzielte Bekanntheit durch die Rotweinregion "Blaufränkischland", sowie die Sonnen- und Familientherme Lutzmannsburg. Die wunderschöne, ebene Landschaft mit mediterranem Klima lädt zu langen Spaziergängen, Fahrradtouren, Golf, kleine Wanderungen, oder Ausflüge ins 15 Autominuten entfernte Thermalbad & Spa Bük in Ungarn, ein.


















