Beschreibung
Zum Verkauf gelangt eine generalsanierte 5-Zimmer-Wohnung, ca. 146,38m² mit Balkon, ca. 11,30m².
Die Wohnung befindet sich im 2. Obergeschoß in einem schönen Gründerzeithaus mit gegliederter Fassade.
Das Gebäude wird demnächst umfassend saniert.
Folgende Arbeiten an den Allgemeinteilen werden durchgeführt und sind im Kaufpreis enthalten:
- Sanierung der Straßen – und Hoffassade
- Einbau eines Personenaufzugs
- Sanierung des Stiegenhauses
- Sanierung des Haustores und Hoftores
- Sanierung/Begrünung Hof (Großteil ist nicht Allgemeinfläche)
- Sanierung der Bleche
- Sanierung der hofseitigen Fenster bzw. Herstellung der Balkontüren
- Sanierung des Kellers (nur zum Teil Allgemeinfläche)
- Sanierung des Stiegenhauses und Eingangsbereiches
- Erneuerung des Daches (im Zuge des DG Ausbaus)
- Erneuerung der Steigleitungsinfrastruktur, (Elektro, Wasser, Abwasser)
- Herstellen einer Luftwärmepumpe zur Versorgung des gesamten Gebäudes (in der Variante 1. Zuleitung bis vor die Wohnungen – gilt auch für Wasser und Elektro neu)
- Herstellen neuer Balkone gem. Baubewilligung
Die Bauarbeiten werden bis ca. Ende 2026 abgeschlossen sein.
Eckdaten im Überblick:
Gewichtete WNFL: ca. 152,03m²
Wohnfläche: ca. 146,38m²
Balkon: ca. 11,30m²
Zimmer: 5
Küche: Anschlüsse
Bad: 4
WC: 3
Abstellraum: 1
Lift: ja
Video Link zur Wohnung: https://storage.justimmo.at/video/1080p/6zp8nv0RozwoIb3sz4iz92.mp4
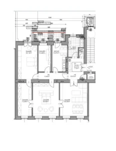
Raumaufteilung:
Vorraum
Großzügiges Wohnzimmer, ca. 51m² mit Wohnküche
Balkon
3 Schlafzimmer mit en-suite Bad (Badewanne/ Dusche, Doppelwaschbecken und WC)
1 weiteres Schlafzimmer sowie
1 weiteres Bad mit Dusche/ WC
Abstellraum
Ausstattung:
Vollholzparkettböden
Fussbodenheizung
Klimaanlage
Flügeltüren
Luftwärmepumpe
Kosten:
Kaufpreis: € 2.128.500,--
Provision: 3% vom KP zzgl. gesetzl. MwSt.
Es besteht die Möglichkeit die Wohnung auch im derzeitigen Zustand zu erwerben.
Weitere Wohnungen stehen im Haus zum Verkauf! Gerne stehen wir Ihnen für nähere Informationen zur Verfügung.
Hinweis gemäß Energieausweisvorlagegesetz: Ein Energieausweis wurde vom Eigentümer bzw. Verkäufer, nach unserer Aufklärung über die generell geltende Vorlagepflicht, sowie Aufforderung zu seiner Erstellung noch nicht vorgelegt. Daher gilt zumindest eine dem Alter und der Art des Gebäudes entsprechende Gesamtenergieeffizienz als vereinbart. Wir übernehmen keinerlei Gewähr oder Haftung für die tatsächliche Energieeffizienz der angebotenen Immobilie.
Wir weisen darauf hin, dass zwischen dem Vermittler und dem zu vermittelnden Dritten ein familiäres oder wirtschaftliches Naheverhältnis besteht.
Der Vermittler ist als Doppelmakler tätig.
Pläne
Lagebeschreibung
Die Wohnung befindet sich in ausgezeichneter Lage in unmittelbarer Nähe zum Rathaus. Öffentliche Verkehrsanbindung: Strassenbahn 2, Bus 13A, U2 Die Infrastruktur bietet Ihnen alles für den täglichen Bedarf. So erreichen Sie fußläufig in wenigen Minuten Supermärkte, Restaurants, Cafés, Schulen sowie das Theater in der Josefstadt.











