Beschreibung
TIMELESS 16 - ZEITLOS WOHNEN
WO TRADITION AUF INNOVATION TRIFFT
Ihr neues Zuhause im Gründerzeithaus,
in dem jede Tür den Beginn einer neuen Geschichte markiert.
Dieses exklusive Revitalisierungsprojekt in der Speckbachergasse 26 bietet Ihnen die einzigartige Chance, modernen Wohnkomfort in einem aufstrebenden Teil des 16. Bezirks zu genießen. Hier entsteht ein Ort, der zeitgemäße Architektur mit hoher Lebensqualität vereint. In einer der lebendigsten Gegenden Ottakrings erleben Sie das Beste aus beiden Welten: Die Nähe zur Stadt mit schnellen Anbindungen und die Ruhe grüner Rückzugsorte.
Das charmante Viertel rund um die Speckbachergasse ist geprägt von einer Vielfalt an kulturellen und kulinarischen Angeboten. Belebte Märkte, gemütliche Cafés und trendige Restaurants verleihen dem Umfeld eine besondere Atmosphäre – ideal für alle, die das urbane Leben lieben.
Das Projekt selbst zeichnet sich durch eine sorgfältig durchdachte Architektur aus, bei der klare Linien und hochwertige Materialien den Ton angeben. Lichtdurchflutete Räume, großzügige Grundrisse und modernste Ausstattung bieten Ihnen ein Wohnerlebnis, das sowohl ästhetisch als auch funktional überzeugt. Nachhaltigkeit und Innovation stehen dabei im Mittelpunkt, um einen zukunftsorientierten Lebensraum zu schaffen.
REVITALISIERTER STILALTBAU IM ZENTRUM WIENS!
8 EXKLUSIVE ALTBAUWOHNUNGEN
3 ATEMBERAUBENDE DACHGESCHOSSWOHNUNGEN
5 EINZIGARTIGE REIHENHÄUSER IM INNENHOF
2 – 4 ZIMMER ZWISCHEN 44 UND 137 m²
HOCHWERTIGE AUSSTATTUNG
FABELHAFTE TERRASSEN
WOHNEN NEU ERLEBEN – Raum für Inspiration und individuelle Entfaltung.
Mit großer Sorgfalt und einem Auge fürs Detail entsteht hier ein wahrhaft außergewöhnliches Wohnprojekt. Die historische Bausubstanz des Hauses wird behutsam restauriert und durch zeitgemäße Akzente ergänzt. Hohe Decken und große Fensterflächen schaffen ein luftiges Raumgefühl und unterstreichen den klassischen Charme des Altbaus. Die hochwertige Ausstattung, von eleganten Fischgrätparkettböden bis hin zu modernen Armaturen, bietet ein stilvolles Wohnerlebnis. Ein Zuhause mit Geschichte und Charakter, das modernen Wohnansprüchen gerecht wird. Durch die sorgfältige Planung wird der historische Charme des Gebäudes bewahrt, während moderne Elemente harmonisch integriert werdenn.
OTTAKRINGER ESSENZ – Geschichte, Kultur und urbanes Leben vereint.
„Wohnen ist die Kunst,
Geschichte und Gegenwart
im Einklang zu erleben.“
– VICTOR HUGO
INTERIOR HIGHLIGHTS
• zentrale Luft/Wärmepumpe (geringe Heizkosten!)
• Fußbodenheizung
• Klimaanlage im Dachgeschoss
• Solarbetriebene Außenjalousien im Dachgeschoss
• VELUX Dachflächenfenster
• 3-fach Verglasung
Eine Harmonie aus Stil und Beständigkeit – geschaffen für die Ewigkeit.
WIEN: EINE DER LEBENSWERTESTEN STÄDTE DER WELT!
Wien ist eine Melange aus prächtiger Architektur, Musik und liebenswertem Charme. Eine Stadt, die mit alter und neuer Avantgarde inspiriert und am besten im Walzerschritt erobert wird. Wien hat ein intaktes historisches Stadtbild wie kaum eine andere Großstadt, geprägt von Prunkbauten aus der Barock- und Gründerzeit.
WIEN 16 – EIN DYNAMISCHES VIERTEL VOLLER TRADITION UND URBANEM CHARME
ALLES IN IHRER NÄHE – EIN VIERTEL VOLLER MÖGLICHKEITEN
Ottakring vereint modernes Stadtleben mit einem besonderen Flair. Der 16. Bezirk zeichnet sich durch seine lebendige Atmosphäre und den abwechslungsreichen Alltag aus. In der direkten Umgebung finden Sie alles, was das Herz begehrt – von charmanten Boutiquen über gemütliche Cafés bis hin zu beliebten Restaurants. Die Nähe zu Grünflächen wie dem Wilhelminenberg sorgt für erholsame Rückzugsorte, während die hervorragende Anbindung an das öffentliche Verkehrsnetz es leicht macht, jeden Winkel Wiens schnell zu erreichen. Ottakring bietet Raum für Kultur, Genuss und Freizeit, perfekt für alle, die einen urbanen Lebensstil mit einem Hauch von Natur verbinden möchten.
Erleben Sie die Vorzüge einer perfekt angebundenen Lage im Herzen von Ottakring. Die hervorragende Infrastruktur ermöglicht Ihnen mühelose Mobilität in alle Teile der Stadt. Die U3 und mehrere Straßenbahnlinien liegen nur wenige Gehminuten entfernt und bringen Sie in kürzester Zeit ins Zentrum. Für Autofahrer bietet die Nähe zu wichtigen Verkehrsadern rasche Verbindungen aus der Stadt hinaus. Auch für Familien ist bestens gesorgt: Eine Vielzahl an Kindergärten und Schulen liegt in unmittelbarer Umgebung und bietet ideale Betreuung und Bildung für Kinder.
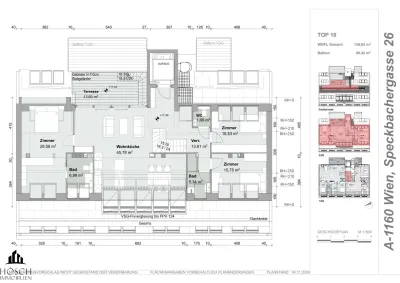
DIE GEGENSTÄNDLICHE W O H N U N G :
- 2. Dachgeschoss
- 4 Zimmer
- Wohnnutzfläche: ca. 136,63 m²
- 2 Terrassen: ca. 49,42 m²
- Ausrichtung: O
Kaufpreis: € 999.000,--
Als Vertragserrichterin und Treuhänderin wird Frau Mag. Alexandra Serek, Fichtegasse 2A, 1010 Wien, bestellt. Das Honorar der Treuhänderin für die Errichtung des Kaufvertrages und die treuhändige Abwicklung und Einverleibung des Eigentumsrechtes beträgt 1,5 % des Gesamtkaufpreises zzgl. 20 % USt.
Erfolgshonorar: 3% vom Kaufpreis zzgl. 20% USt.
Für Rückfragen bzw. Besichtigungstermin steht Ihnen Frau Cheyenne Dalsasso gerne unter der
Rufnummer +43 660 379 17 59 zur Verfügung.
Irrtum und Änderungen vorbehalten! Bei den Bildern handelt es sich um Visualisierungen, daher können Abänderungen zur tatsächlichen Ausführung resultieren. Wir weisen ausdrücklich darauf hin, dass das ersichtliche Mobiliar bzw. Inventar nicht Bestandteil des inserierten Preises ist.
Wir weisen darauf hin, dass zwischen dem Vermittler und dem zu vermittelnden Dritten ein familiäres oder wirtschaftliches Naheverhältnis besteht.
Der Vermittler ist als Doppelmakler tätig.
Pläne
Lagebeschreibung
Speckbachergasse 26
Anbieter kontaktieren
Weitere Objekte in diesem Projekt
TIMELESS 16 - exklusives Revitalisierungsprojekt im Herzen Wiens + REIHENHÄUSER im Innenhof [Neubau]
Wohnfläche
Zimmer
Kaufpreis
TIMELESS 16 - exklusives Revitalisierungsprojekt im Herzen Wiens + REIHENHÄUSER im Innenhof [Neubau]
Wohnfläche
Zimmer
Kaufpreis
TIMELESS 16 - exklusives Revitalisierungsprojekt im Herzen Wiens + REIHENHÄUSER im Innenhof [Neubau]
Wohnfläche
Zimmer
Kaufpreis
TIMELESS 16 - exklusives Revitalisierungsprojekt im Herzen Wiens + REIHENHÄUSER im Innenhof [Neubau]
Wohnfläche
Zimmer
Kaufpreis





















