Beschreibung
In diesem 3 Parteien-Haus, in der Edensiedlung, in 8530 Deutschlandsberg sind aktuell noch 2 Wohnungen im Erdgeschoß mit einem Gartenanteil verfügbar.
Diese Wohnung befindet sich im Ortsteil Kresbach hinter der Kaminstube.
Die ISH gilt als renommierter Bauträger in der Region mit zahlreichen Referenzbauten, wie der Westlandpark und weiteren tollen Projekten.
Regionale Firmen-hochwertige Materialien-und eine Fixpreis Garantie erwarten Sie.
Noch hätten Sie die Möglichkeit, Ihr neues Zuhause mitzugestalten. Der Verkauf erfolgt provisionsfrei über den Bauträger.
Die Eckdaten:
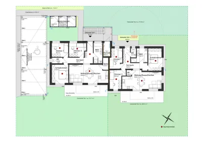
- 88,16m² NFL
- 21m² Terrasse
- 232m² Gartenanteil
- Ziegelmassiv
- Walmdach
- Luftwärmepumpe
- Photovoltaik
- Boden Landhausdiele Eiche hell-Fliesen grau 60 x 60
- 2 Carportplätze und Kellerersatzraum - Aufpreis
Interesse? Rufen Sie uns gerne an.
Wir weisen darauf hin, dass zwischen dem Vermittler und dem zu vermittelnden Dritten ein familiäres oder wirtschaftliches Naheverhältnis besteht.
Der Vermittler ist als Doppelmakler tätig.
Pläne
Lagebeschreibung
Die Wohnung befindet sich in der Gemeinde Deutschlandsberg an der Koralpe, in der Steiermark. Sie liegt im Erdgeschoss eines Dreiparteienhauses und verfügt über einen eigenen Gartenbereich. Die Umgebung ist ruhig und familienfreundlich. Eine Bushaltestelle ist fußläufig erreichbar und bietet eine gute Anbindung an das öffentliche Verkehrsnetz. Einkaufsmöglichkeiten, Schulen und Freizeiteinrichtungen sind ebenfalls in der Nähe vorhanden. Die Stadt Graz ist mit dem Auto in etwa 30 Minuten erreichbar.





