Beschreibung
SECHS TOP-REIHENHÄUSER IM SÜDEN VON KLAGENFURT
Wenn Sie in sonniger und ruhiger, fast ländlicher Lage leben und trotzdem die Vorzüge der Stadt genießen wollen, dann sind Sie bei diesem Neubau-Projekt total RICHTIG!
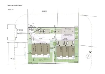
Zwei Häuser mit jeweils drei Reihenhaus-Einheiten werden in modernster Holzriegelbauweise am Ende des Krieglweges errichtet - Lärmbelästigung durch Durchzugsverkehr ist somit unmöglich!
Die Ausrichtung der Häuser nach Süd-Ost sichert Ihnen unzählige Sonnenstunden und einen herrlichen Fernblick. - Sie relaxen in ihrem eigenen Garten, auf Ihrer Terrasse oder im Obergeschoss auf Ihrer Loggia/Balkon!
Der Bauträger - die "FN Fertighausproduktion GmbH" aus Völkermarkt - garantiert Ihnen exquisite, schlüsselfertige Ausführung und beste Wohnqualität. - Sie fixieren Ihr Wunschhaus und können 12 Monate später das Haus beziehen!
Ihr Auto parkt im eigenen Carport, anstelle des Kellers wird ein ebenerdiger Lagerraum errichtet.
HAUS TOP 6
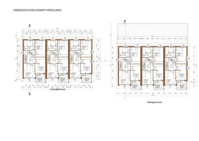
Beim Haus Nr. 6 handelt es sich um ein Eck-Reihenhaus mit einer Wohnfläche von insgesamt rund 114 m² auf zwei Ebenen.
Dazu kommen eine rund 23 m² große ebenerdige Terrasse, eine rund 138 m² große Gartenfläche sowie eine rund 7 m² große Loggia/Balkon im Obergeschoss.
Die Raumaufteilung:
Sie betreten das Haus über einen rund 8,41 m² großen Vorraum, von dem aus die Treppe in das Obergeschoss führt. Vom Vorraum aus betreten Sie einerseits das WC Nr. 1 (1,98 m²) sowie den großzügigen, sonnigen Wohn-, Ess- und Küchenbereich des Hauses, welcher eine Fläche von rund 45,21 m² ausweist. Davor positioniert befindet sich Ihr "Freiraum" mit Terrasse und Eigengarten!
Im Obergeschoss ermöglicht ein rund 6,06 großer Vorraum den Zutritt zu den drei (Schlaf-)Zimmern, die die Größen von 14,25 m², 13,72 m² und 13,52 m² haben.
Das 9,16 m² große Badezimmer (mit Fenster) verfügt über ein weiteres WC.
Von zwei der drei Zimmer aus gelangen Sie auf die rund 7 m² große Loggia/Balkon.
BAUZEIT - FERTIGSTELLUNG
Der Baustart ist bereits erfolgt (Haus 4, Fertigstellung innerhalb 4 Monate). Bei allen anderen Häusern müssen Sie von der Fixierung Ihres Hauses bis zur Fertigstellung mit einer Bauzeit von rund 12 Monaten rechnen.
VERFÜGBARE REIHENHÄUSER:
Haus 1: Wohnfläche 116 m², Terrasse 24 m², Garten 128 m², 1 Carport, Keller-Ersatzraum. Kaufpreis € 469.000,-- zuzüglich angeführter Nebenkosten
Haus 2: Wohnfläche 113 m², Terrasse 24 m², Garten 18,74 m², 1 Carport, Keller-Ersatzraum. Kaufpreis € 429.000,-- zuzüglich angeführter Nebenkosten
Haus 3: Wohnfläche 114 m², Terrasse 24 m², Garten 52,32 m², 1 Carport, Keller-Ersatzraum. Kaufpreis € 439.000,-- zuzüglich angeführter Nebenkosten
Haus 4: Wohnfläche 116 m², Terrasse 24 m², Garten 68,93 m², 1 Carport, Keller-Ersatzraum. Kaufpreis € 459.000,-- zuzüglich angeführter Nebenkosten
Haus 5: Wohnfläche 113 m², Terrasse 24 m², Garten 36,83 m², 1 Carport, Keller-Ersatzraum. Kaufpreis € 429.000,-- zuzüglich angeführter Nebenkosten
Haus 6 (Oben dargestellt): Wohnfläche 114 m², Terrasse 24 m², Garten 138,93 m², 1 Carport, Keller-Ersatzraum. Kaufpreis € 469.000,-- zuzüglich angeführter Nebenkosten
Alle m²-Angaben in der Präsentation sind Zirka-Angaben!
Nebenkostenhinweis:
KEINE MAKLERGEBÜHR FÜR DEN KÄUFER! 3,5 % Grunderwerbssteuer, 1,1 % Kosten der Grundbuchseintragung, 1,8 % für die Kaufvertragserstellung und die Treuhandabwicklung inkl. 20 % MwSt.
Die Abwicklung des Kaufes erfolgt treuhändig gemäß Bauträger-Vertragsgesetz!
Wichtiger Hinweis: die dargestellten "Fotos" sind computer-animiert und symbolhaft zu verstehen!
MARKTLÜCKE - IMMOBILIEN - GLM Immobilien GmbH:
Wir bitten Sie um Verständnis, dass wir aus Datenschutz-Gründen nur schriftliche Anfragen unter Angabe Ihres Namens und Ihrer Kontaktdaten bearbeiten können. Vielen Dank!
Nutzen Sie unsere über 25-jährige Erfahrung im Immobilien- UND Finanzbereich! - Ihre Immobilie, Ihre Finanzen - bei uns in besten Händen!
Hinweis:
In Entsprechung des FAGG (Fern- und Auswärtsgeschäfte-Gesetz) und des VRUG (Verbraucherrechte-Richtlinie-Umsetzungsgesetz), in Kraft getreten am 13. Juni 2014, ist uns die Herausgabe relevanter Informationen wie z.B. Lage des Objektes nur mehr nach Erhalt einer schriftlichen Anfrage mit vollständigen Kontaktangaben möglich. Wir ersuchen Sie hierfür um Verständnis.
Die angegebenen Daten stammen vom Eigentümer und/oder Dritten und wurden mit Sorgfalt erhoben. Für die Richtigkeit und Vollständigkeit kann jedoch keine Haftung übernommen werden. Technische Anlagen / Einrichtungen und Geräte wurden nicht auf Ihre Funktionstüchtigkeit überprüft. Zahlenangaben können gegebenenfalls gerundet oder eingeschätzt sein. Das Angebot ist freibleibend und unverbindlich. Irrtümer und Änderungen sind vorbehalten.
Hinweis gemäß Energieausweisvorlagegesetz: Ein Energieausweis wurde vom Eigentümer bzw. Verkäufer, nach unserer Aufklärung über die generell geltende Vorlagepflicht, sowie Aufforderung zu seiner Erstellung noch nicht vorgelegt. Daher gilt zumindest eine dem Alter und der Art des Gebäudes entsprechende Gesamtenergieeffizienz als vereinbart. Wir übernehmen keinerlei Gewähr oder Haftung für die tatsächliche Energieeffizienz der angebotenen Immobilie.
Der Vermittler ist als Doppelmakler tätig.
Pläne
Lagebeschreibung
Die hier angebotene Reihenhaus-Anlage wird am Ende des Krieglweges im Süden der Landeshauptstadt Klagenfurt errichtet. Trotz fast "ländlicher" Lage erreichen Sie in wenigen Minuten Einkaufsmöglichkeiten für den täglichen Bedarf und darüber hinaus. Anbindung an öffentliche Verkehrsmittel durch städtische Busse in unmittelbarer Nähe. Entfernungen: Neuer Platz Klagenfurt 2 km, Shopping-Center 750 m, Hauptbahnhof Klagenfurt 800 m, Flughafen Klagenfurt 6,6 km, Strandbad Wörthersee 5,6 km, Krankenhaus 2,3 km, Wien 302 km, Salzburg Stadt 219 km, Venedig 278 km.








