Beschreibung
NUR 47 MINUTEN VON WIEN, NÄHE KREMS UND STIFT GÖTTWEIG!
Nahe Krems "eine der lebenswertesten Städte Österreichs" inmitten des malerischen Weinbaugebiets rund um das Stift Göttweig gelangt dieser traditionell gestaltete Vierkanthof zum Verkauf.
Die auf einem 1.170m² großen Grundstück befindliche Liegenschaft vereint ländliche Idylle mit großzügigem Lebensraum für kreative Gestaltungsmöglichkeiten.
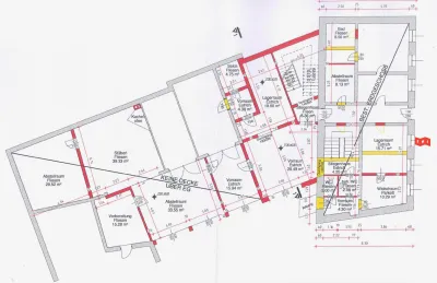
Aufteilung
Wohngebäude 1: BJ. 1968: ca. 190m²,
EG: bestehend aus 2 Vorräumen ca. 28m², 6 geräumige Zimmer, Küche ca.15,75m², Fliesenbad, 2 WC's 2 Wohngebäuden
Keller: ca 60m² mit Festbrennstoffkessel - Zentralheizung mit Warmwasseraufbereitung.
Wohngebäude 2 mit DG: ca. 350m²
EG: bestehend aus Einlegerwohnung ca. 39m², Hofladen ca. 26m², Allgemeinflächen ca 24,18m² und Technikraum für die Gaszentralheizung mit Warmwasseraufbereitung, sowie zusätzliche Lagerräume im Ausmaß von ca 63,55m²
DG: ca. 183,16m² bestehend aus Vorraum, 7 Zimmer, 3 Bäder
Heurigenlokal: ca. 185,35m² + Kamin Stüberl ca. 39,33m²
bestehend aus Hauptsaal 97,2m², Stüberl ca. 24m² Küche ca. 39,9m², Kühlhaus ca. 12m²
Lagerflächen: ca 106,74m²
Dieses Objekt besticht durch seine vielfälltige Nutzungsmöglichkeiten mit zusätzlichem Ausbaupotenzial wie beispielsweise als Seminarzentrum, Ferienwohnungen, Restaurant- oder Heurigenbetrieb mit aufrechter Betriebsanlagengenehmigung, Eventlocation oder einfach als großzügiger Wohnsitz für eine oder mehrere Familien.
Lage
Nur 47 Autominuten von Wien in zentraler Lage zwischen Stift Göttweig und dem historischem Krems, in einer der schönsten Regionen an der Donau geprägt durch den Weinbau und seine geschichtsträchtige Umgebung.
Für nähere Informationen oder einen Besichtigungstermin stehen wir Ihnen gerne telefonisch oder per E-Mail zur Verfügung.
FHI Real Estate GmbH
t +431342222
f +43134222211
e ap@fhi.at
www.fhi.at
Die Angaben erfolgen aufgrund von Informationen und Unterlagen, die uns vom Eigentümer und/oder von Dritten zur Verfügung gestellt wurden und sind ohne Gewähr.
Der Vermittler ist als Doppelmakler tätig.
Pläne
Lagebeschreibung
Stift Göttweig/Krems





















