Beschreibung
Zum Verkauf steht ein vollständig ausgestatteter Gasthof in traumhafter Lage auf der Hochrindl, einem beliebten Erholungs- und Skigebiet in den Nockbergen, Kärnten. Das Objekt bietet eine einzigartige Gelegenheit für Gastronomen und Investoren, einen sofort betriebsbereiten Beherbergungs- und Gastronomiebetrieb zu übernehmen oder das Anwesen in ein luxuriöses Chalet umzuwandeln.
Highlights des Gasthofs:
- Obergeschoss: 6 komfortable Gästezimmer mit eigenem Bad und Balkon, die insgesamt 18 Betten bieten und einen herrlichen Ausblick auf die umliegende Bergwelt ermöglichen.
- Untergeschoss: Zwei zusätzliche Zimmer mit 5 Betten sowie eine separate Eigentümerwohnung mit Wohn- und Essbereich, Schlafzimmer und Badezimmer.
- Erdgeschoss: Stilvoll gestaltete Gasträume mit moderner Theke, separate Damen- und Herren-WCs, ein Skiraum sowie eine voll ausgestattete, zeitgemäße Küche.
- Großzügige Außenflächen: Terrassen (166 m²) und Balkone (95 m²) laden Gäste zum Verweilen im Freien ein und bieten den perfekten Ort für Entspannung und Genuss.
Vielseitiges Nutzungspotential: Das Haus kann unmittelbar wieder als Gasthaus mit Beherbergungsbetrieb eröffnet werden – dank der erstklassigen Lage ist ein starker Gästestrom garantiert. Alternativ besteht die Möglichkeit, das Objekt in ein großes Chalet für mehrere Familien umzuwandeln. Darüber hinaus bietet die Grundstücksfläche von ca. 2.700 m², die als Bauland Kurgebiet ausgewiesen ist (GFZ 0,8), enormes Potential für den Bau touristischer Apartments oder eine Erweiterung des bestehenden Betriebs.
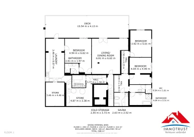
Flächenaufteilung:
- Grundstücksfläche: ca. 2.696 m²
- Untergeschoss: 255 m²
- Erdgeschoss: 218 m²
- Obergeschoss: 215 m²
- Terrassenflächen: 166 m²
- Balkonflächen: 95 m²
Dieses Objekt stellt eine einmalige Investitionsgelegenheit dar, sowohl für den Gastronomie- und Tourismusbereich als auch für private Nutzung oder Neuprojekte. Die Hochrindl, mit ihrer unberührten Natur und einer Vielzahl an Sommer- und Winteraktivitäten, zieht das ganze Jahr über zahlreiche Besucher an. Nutzen Sie diese Chance und sichern Sie sich eine wertvolle Immobilie in einer der schönsten Bergregionen Kärntens!
Pläne
Lagebeschreibung
Das Gasthaus auf der Hochrindl ist eine einmalige Gelegenheit, eine Immobilie in einer der schönsten Bergregionen Kärntens zu erwerben. Inmitten der idyllischen Nockberge gelegen, besticht das Gasthaus durch seine hervorragende Lage auf 1.580 Metern Seehöhe, die sowohl im Sommer als auch im Winter zahlreiche Möglichkeiten zur Freizeitgestaltung bietet. Im Winter begeistert die Hochrindl als familiäres Skigebiet mit rund 20 Kilometer Pisten für jedes Können – ideal für Wintersportler und Erholungssuchende. Das Gasthaus befindet sich nur wenige Schritte von den Skiliften entfernt, wodurch Skivergnügen direkt vor der Tür beginnt. Auch Langläufer und Schneeschuhwanderer kommen auf den weitläufigen Loipen und Winterwanderwegen voll auf ihre Kosten. Nach einem aktiven Tag lädt das Gasthaus zum gemütlichen Ausklang am Kamin ein. Im Sommer verwandelt sich die Hochrindl in ein Wanderparadies. Direkt vor der Haustür starten Wanderwege zu den sanften Almen und Gipfeln der Nockberge, wie dem Speikkofel oder dem Weißen Kreuz. Die malerische Umgebung mit ihren Zirbenwäldern und Bergseen lädt zu ausgedehnten Touren oder entspannten Spaziergängen ein. Familien können den Zirbenzapfi-Erlebnisweg oder den Märchenpark König Waldgeist erkunden, während ambitionierte Wanderer das Quellgebiet der Gurk erforschen. Die Lage des Gasthauses Alpl vereint Ruhe und Naturverbundenheit mit optimaler Erreichbarkeit. Die Hochrindl ist ein Geheimtipp für Naturliebhaber, die authentische Erlebnisse in den Bergen suchen. Hier genießen Sie klare Bergluft, eine intakte Natur und einen atemberaubenden Panoramablick über fast ganz Kärnten. Diese Immobilie bietet Ihnen nicht nur eine fantastische Lage für den Tourismus, sondern auch eine attraktive Geschäftsmöglichkeit in einer Region, die sich stetig wachsender Beliebtheit erfreut.










































