Beschreibung
Im Falle der Notwendigkeit einer Fremdfinanzierung Ihrer Wunschimmobilie ermittelt unser Wohnbau-Finanzierungsexperte gerne die optimale Finanzierungslösung und findet das passende Zins- und Konditionsangebot für Sie. Er vergleicht die aktuellen Angebote aller relevanten Banken und Bausparkassen. Der Angebotsvergleich kann aus einem Portfolio von über 120 Banken erfolgen. Das Erstgespräch ist für Sie kostenfrei und unverbindlich, gerne auch bei Ihnen vor Ort. So sparen Sie Ihre wertvolle Zeit und erhalten eine professionelle und unabhängige Finanzierungslösung vom Spezialisten. Sprechen Sie uns wegen eines Termins gerne an!
Zum Verkauf gelangt ein charmantes Mittelzinshaus im 18. Wiener Gemeindebezirk.
Bei der Immobilie handelt es sich um ein gepflegtes, um 1900 erbautes, Zinshaus auf einer Grundstücksfläche von ca. 481 m². Das Haus umfasst aktuell ca. 334 m² Wohnfläche.
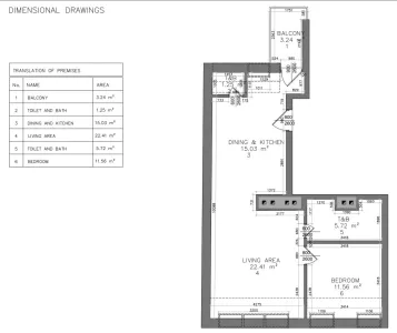
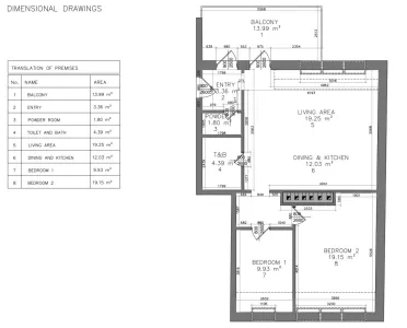
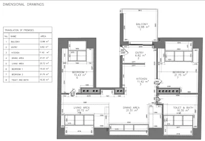
Der Aus- und Umbau des Gebäudes wurde bereits genehmigt und ergibt eine geplante Wohnnutzfläche von insgesamt ca. 573 m2. Geplant sind 10 Wohnungen, mehrere Terrassen, eine Dachterrasse und ein Gemeinschaftsgarten auf Erdgeschoss, zwei Obergeschossen und zwei Dachgeschossen. Ebenso ist die Errichtung eines Lifts bereits bewilligt. Der Dachgeschossausbau würde eine weitere Wohnfläche von ca. 212 m² sowie ca. 40 m² Terrassenfläche schaffen.
Die Lage des Zinshauses ist ausgezeichnet. Es befindet sich zentral im 18. Wiener Gemeindebezirks, welcher durch die weitläufigen Grünflächen, der Villen und Gründerzeithäuser, aber auch der Innenstadtnähe keine Wünsche offenlässt. Der nahegelegene Türkenschanz Park lädt zum Verweilen und aufgrund der Weitläufigkeit zu ausgiebigen Spaziergängen ein.
Einkaufsmöglichkeiten und diverse Geschäfte des täglichen Bedarfs sind in unmittelbarer Nähe und fußläufig zu erreichen. Ebenso sind Restaurants und Cafés nicht weit entfernt. Der nahegelegene Kutschkermarkt bietet am Wochenende nicht nur eine Möglichkeit bei heimischen Produzenten einzukaufen, sondern lädt Sie auch kulinarisch auf eine Reise ein. Die Volksoper ebenso wie die FH Wien der WKW sind in unmittelbarer Umgebung und bieten sowohl Platz für Bildung, als auch Kultur. Die Anbindung an das öffentliche Verkehrsnetz ist hervorragend, sowohl Busse, als auch die U-Bahn und Straßenbahnen sind in unmittelbarer Umgebung und Sie erreichen den ersten Bezirk in weniger als 20 Minuten.
Gerne lassen wir Ihnen bei ernsthaftem Interesse - vor Kaufanbotlegung - weitere vertraulichen Dokumente zu dieser Liegenschaft zukommen, welche nicht veröffentlicht werden dürfen.
Überzeugen Sie sich selbst von diesem überaus attraktiven Objekt. Für Besichtigungen und nähere Informationen stehen wir Ihnen gerne zur Verfügung!
Mag. Viola Wasmuth
national - Tel: 0670 4039361
international - Tel: +43 670 4039361
e-mail: wasmuth@lifestyle-properties.at
Wir weisen darauf hin, dass zwischen dem Vermittler und dem zu vermittelnden Dritten ein familiäres oder wirtschaftliches Naheverhältnis besteht.
Der Vermittler ist als Doppelmakler tätig.
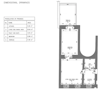
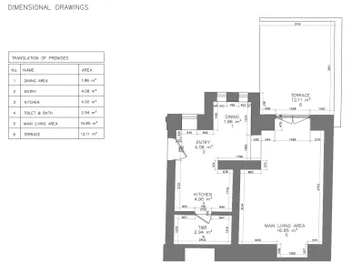
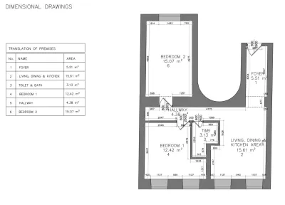
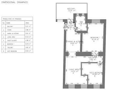
Pläne


















