Beschreibung
Lage & Infrastruktur
Das Projekt TWENTYNINE befindet sich in der Parkgasse in Alland, einer der beliebtesten Lagen im Wiener Umland. Die ruhige, grüne Umgebung mit Dorfcharakter bietet höchste Lebensqualität und ist ideal für Familien und Naturliebhaber, die Ruhe und Erholung suchen und trotzdem gut angebunden bleiben möchten.
Die Wiener Innenstadt ist in etwa 32 Minuten mit dem Auto erreichbar. Wer lieber öffentlich pendelt, profitiert von einem breiten Angebot an Buslinien und deren Destinationen. Die Buslinie 169 fährt direkt vom Allander Hauptplatz in rund 36 Minuten zum Wiener Hauptbahnhof. Weitere Linie wie 108, 109, 265, 306-308 verbinden Alland mit Mödling, Baden, St. Pölten und weiteren umliegenden Ortschaften.
Alland verfügt auch über eine gute Infrastruktur. Kindergarten und Volksschule sind fußläufig erreichbar, ebenso Apotheke, Bäcker und Nahversorger.
Die Umgebung bietet zudem zahlreiche Freizeitmöglichkeiten in der Natur, etwa Wanderwege, Radstrecken und Ausflugsziele wie das Helenental oder den Wienerwald.
Raumaufteilung & Ausstattung – Funktional & hochwertig
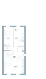
Dieses modernen Reihenhaus von TWENTYNINE bietet auf 117 m² Wohnfläche ein durchdachtes Raumkonzept mit hoher Wohnqualität. Neben drei Schlafzimmern und einem großzügigen Wohnbereich steht ein zusätzlicher, flexibel nutzbarer Raum zur Verfügung – ideal als Büro, Schrankzimmer, Gästezimmer oder als Spielzimmer für Kinder.
Der herrliche Garten mit Terrasse bietet bis in die Abendstunden Sonne. Der idyllische alte Baum auf dem allgemeinen Areal bereitet diesem Projekt einen ganz besonderen Charme und sorgt zudem für natürliche Beschattung. Wer es gerne etwas schattiger mag, für den sind die außenliegenden Rollläden als Sonnenschutz ideal.
Alle Häuser des TWENTYNINE sind schlüsselfertig ausgeführt – einziehen und sofort wohlfühlen. Jede Einheit verfügt über zwei eigene KFZ-Stellplätze und auch einen praktischen Geräteschuppen gibt es beim Kauf einer Einheit im Preis inkludiert obendrauf - so bleibt der Garten voll nutzbar, da man seine Geräte separat verstauen kann. Die Voreinrichtung für eine Photovoltaikanlage ist bereits integriert und macht das Projekt zukunftsfit.
Grundriss – durchdacht & lichtdurchflutet
Noch vor dem Betreten Ihres neuen Zuhauses werden Sie vom einladenden Außenbereich und der großen modernen Eingangstür empfangen. Im schicken Vorraum angekommen, erblickt man sofort den hell strahlenden Wohnbereich mit Zugang zur Terrasse und dem Garten. Große Fensterflächen sorgen für natürliche Belichtung über den ganzen Tag verteilt. Die offene Küche bietet viel Platz für gemeinsames Kochen und Genießen. Ergänzend verfügt das Erdgeschoß noch über kleines Badezimmer mit WC, einen Abstellraum und einen zusätzlichen geräumigen Raum, der sich ideal als Büro anbietet. Über den Stiegenaufgang im Vorraum gelangt man vom Erdgeschoß ins Obergeschoß.
Oben befinden sich drei weitere Zimmer, die getrennt voneinander über den Flur begehbar sind. Auch ein wunderschönes Badezimmer im eleganten Design ist hier zu finden. Die Raumaufteilung ist modern und funktional - perfekt für Familien, Paare oder Singles, die mehr als nur Standard suchen.
Hier nochmals alle Angaben des TWENTYNINE auf einen Blick:
-
Vier moderne Reihenhäuser in ruhiger Lage in Alland
-
Südwest-Ausrichtung für viel Licht und Sonne
-
Schlüsselfertig – sofort bezugsbereit
-
107m² / 117m² Wohnfläche auf zwei Ebenen
-
4 Zimmer + zusätzlicher Raum ideal als Büro, Schrankraum oder Gästezimmer
-
Zwei KFZ-Stellplätze pro Einheit
-
Eigener Geräteschuppen pro Einheit
-
Photovoltaik-Voreinrichtung
-
Außenliegender Sonnenschutz / Rollläden
-
Wiener Innenstadt in ca. 32 Minuten mit dem Auto, direkte Busverbindung zum Wiener Hauptbahnhof in ca. 36 Minuten (Linie 169)
-
Kindergarten, Volksschule, Apotheke & Nahversorgung fußläufig erreichbar
! Sie benötigen Hilfe bei der Finanzierung?
Sehr gerne unterstützen wir Sie bei Finanzierungsfragen und stellen auf Wunsch den Kontakt zu unseren Finanzierungspartnern her. Unser ausgezeichnetes Netzwerk ermöglicht Ihnen den Zugang zu passenden Finanzierungslösungen.
Rund-um Service für Ihre Immobilie
Sie möchten vor dem Kauf noch Ihre eigene Immobilie verkaufen? Gerne bieten wir Ihnen eine kostenlose Bewertung Ihrer Immobilie an und unterstützen Sie professionell bei der Vermarktung und dem Verkauf – so steht Ihrem Immobilienkauf bald nichts mehr im Weg.
Information
In diesem Projekt stehen noch weitere Wohneinheiten in unterschiedlichen Größen zur Verfügung.
Die oben angeführten Angaben basieren auf Informationen und Unterlagen des Eigentümers und sind unsererseits ohne Gewähr.
Noch nichts gefunden? Wir informieren Sie über geeignete Immobilienangebote noch vor allen anderen.
Legen Sie jetzt Ihren individuellen Suchagenten unter folgendem Link an. Wir schicken Ihnen passende Immobilien exklusiv vorab zu.
Suchagent anlegen
Der Vermittler ist als Doppelmakler tätig.
Pläne
Lagebeschreibung
Das Projekt TWENTYNINE befindet sich in der Parkgasse in Alland, einer der beliebtesten Lagen im Wiener Umland. Die ruhige, grüne Umgebung mit Dorfcharakter bietet höchste Lebensqualität und ist ideal für Familien und Naturliebhaber, die Ruhe und Erholung suchen und trotzdem gut angebunden bleiben möchten. Die Wiener Innenstadt ist in etwa 32 Minuten mit dem Auto erreichbar. Wer lieber öffentlich pendelt, profitiert von einem breiten Angebot an Buslinien und deren Destinationen. Die Buslinie 169 fährt direkt vom Allander Hauptplatz in rund 36 Minuten zum Wiener Hauptbahnhof. Weitere Linie wie 108, 109, 265, 306-308 verbinden Alland mit Mödling, Baden, St. Pölten und weiteren umliegenden Ortschaften. Alland verfügt auch über eine gute Infrastruktur. Kindergarten und Volksschule sind fußläufig erreichbar, ebenso Apotheke, Bäcker und Nahversorger. Die Umgebung bietet zudem zahlreiche Freizeitmöglichkeiten in der Natur, etwa Wanderwege, Radstrecken und Ausflugsziele wie das Helenental oder den Wienerwald.













