Beschreibung
Gönnen Sie sich eine Auszeit!
Am westlichen Rande der Gemeinde Krumpendorf am Wörthersee entsteht eine moderne und stilvolle Wohnanlage, bestehend aus zwei Gebäuden mit jeweils 8 Einheiten.
Das Projekt wurde mit Bedacht auf den maximalen Wohnkomfort geplant. Durchdachte Grundrisse, hochwertige Ausstattung und energieeffiziente Technologien vereint in einem Wohnprojekt in einer der begehrtesten Gegenden der Region.
Das äußere Erscheinungsbild der Gebäude passt sich mittels Verwendung von qualitativ erstrangigen Materialien dem ländlichen Ortsbild an und vermittelt auch schon von Außen den Charakter eines behaglichen Wohngefühls.
Wohnungsgrößen von 52 m² bis 87 m² (größere Wohnungen mittels Zusammenlegung von Einheiten möglich)
Verkaufspreise ab 318.500 EUR
HIGHLIGHTS
- Moderne Wohnanlage mit hauseigener Tiefgarage
- Wenige Gehminuten vom Wörthersee entfernt
- Exzellente Infrastruktur (Nahversorger, Bildungseinrichtungen, etc.)
- Überwiegende Südausrichtung
- Anspruchsvolle Innenausstattung
- Kellerabteil für jede Wohneinheit
- Elektrovorrichtungen für E-Fahrzeuge
- Kosteneffizienz aufgrund der Erdwärmepumpe und Photovoltaikanlage
- Erfahrener Bauträger, über 140 Jahre Firmentradition
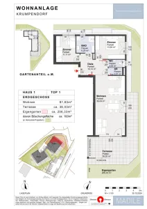
Pläne
Lagebeschreibung
Die Wohnanlage befindet sich im Westen der Gemeinde Krumpendorf in Richtung Pörtschach. Idyllisch am Waldrand gelegen, verfügt die Anlage darüber hinaus über eine exzellente Infrastruktur: Zwei Supermärkte befinden sich in unmittelbarer Nähe, ebenso wie Bildungseinrichtungen (Krabbelstube, Kindergarten und Volksschule) und ein vielfältiges gastronomisches Angebot (Soleo, Buschenschank Krainer, Fisch Süd, Thalerium, Seegasthaus, Magnolia, etc.). Der Wörthersee ist 5 Gehminuten entfernt und der Zugang zum Waldgebiet (Pirkerkogel, Wörthersee Rundwanderweg) befindet sich direkt hinter dem Haus.
Anbieter kontaktieren
Weitere Objekte in diesem Projekt
Wohnanlage Auszeit- 4 Zimmer Wohnung- Ein Projekt von MADILE
Wohnfläche
Zimmer
Kaufpreis
Wohnanlage Auszeit - 2 Zimmer - Ein Projekt von MADILE
Wohnfläche
Zimmer
Kaufpreis
Wohnanlage Auszeit - 3 Zimmer Penthouse - Ein Projekt von MADILE
Wohnfläche
Zimmer
Kaufpreis
Wohnanlage Auszeit - 2 Zimmer Wohnung - Ein Projekt von MADILE
Wohnfläche
Kaufpreis



