Beschreibung
Alle Immobilien der EGLO-Gruppe können jetzt auch mit EGLO Wohn.Wert clever finanziert werden. Haben Sie Interesse? Dann erkundigen Sie sich unter https://eglo-immobilien.at/wohnwert/ über das attraktive Finanzierungsmodell. EGLO Wohn.Wert. Morgen kaufen. Heute wohnen.
Auf dem ehemaligen Park+Ride Areal am Bahnhof Schwaz, entsteht hier ein multifunktionales, modernes Gebäude mit:
– ca. 312 Stellplätzen inkl.
– Carsharing-Angebot
– Büro-/Gewerbeflächen
– Gastronomie mit Skybar
– ca. 92 Wohnungen
– Kinderbetreuungseinrichtung
– Urban Gardening
– ca. 1.200 m2 – Gartenfläche
– u. v. m.
Wohnungen
Wohnen im Zentrum mit guter Anbindung an öffentlichen Verkehr, sonniger Lage, tolle Infrastruktur.
Wichtiger Hinweis:
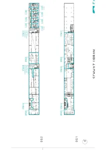
Bei den hier gezeigten Plänen handelt sich um die Wohnungstypen, individuelle Abweichungen sind möglich. Es sind derzeit folgende Einteilungen der Wohnungen geplant: 2-4 Zimmerwohnungen - von ca.50m²-103m². Pro Wohnung ist 1 Tiefgaragenplatz vorgesehen, welche vom Errichter dauerhaft an den Erwerber vermietet werden.
Die Anlage wird mittels Grundwasserwärmepumpen beheizt, im Sinne der Nachhaltigkeit wird zudem vom Bauträger eine Photovoltaikanlage installiert.
Ausstattungsmerkmale - Auszug:
Echtholzparkett im Wohnbereich
In den Aufenthaltsräumen kommen ausschließlich Echtholzparkettböden in hochwirksamer Kombination mit Fußbodenheizung zum Einsatz; es steht eine Vielzahl an Ausführungen zur Wahl:
Pflegeleichtes Feinsteinzeug in Sanitär- und Nebenräumen
Großformatiges Feinsteinzeug veredelt Bad- und WC-Räume sowie Nebenräume. Die Vielfalt der ausgewählten Produkte ermöglicht eine große Bandbreite an individuellen Kombinationsmöglichkeiten:
Kernkompetenzen Licht und Architektur in symbiotischer Verbindung
Nichts kann die Vorzüge ausgefeilter Architektur besser hervorheben als die passende Beleuchtung. Sie gibt jeder Immobilie den letzten Schliff, jedem Raum das gewünschte Ambiente und steigert das Wohlbefinden der Bewohner. Um den Kunden von EGLO Immobilien diese Vorzüge vergünstigt zugänglich zu machen, erhalten WohnungskäuferInnen exklusive 40 % Ermäßigung auf Beleuchtung und Lichtplanung bei EGLO Leuchten.
Gerne können wir Ihnen weitere Details im Rahmen eines unverbindlichen Gespräches anbieten. Durch die direkte Anbietung an den Bahnhof Schwaz, sowie die hochwertige Ausstattung, zB. Photovoltaik etc, ist hier ein perfekte Symbiose zwischen Büro, Pendler, Wohnraum gegeben.
Wir weisen darauf hin, dass zwischen dem Vermittler und dem zu vermittelnden Dritten ein familiäres oder wirtschaftliches Naheverhältnis besteht.
Der Vermittler ist als Doppelmakler tätig.
Pläne
Lagebeschreibung
Bahnhof Schwaz, Spornbergerstraße 1-5. Schwaz ist als Bezirkshauptstadt das wirtschaftliche Zentrum der Region. einige von Tirols wichtigsten wirtschaftlichen Playern haben Ihren Hauptsitz rund um die Silberstadt. Die Wirtschaftsszene in Schwaz ist genauso vielfältig wie deren Menschen. Als lebendige Stadt hat sich Schwaz einen Namen gemacht und ist alljährlich Gastgeber diverser Musikfestivals. Erreichbarkeit: - 20 Sec. zu Fuß zum Bahnhof - 20 Min. mit dem Rad zu den umliegenden Naherholungsgebieten - 20 Min. mit dem Zug nach Kufstein/Innsbruck
Anbieter kontaktieren
Weitere Objekte in diesem Projekt
Wohnanlage Schwaz Urban
Wohnanlage Schwaz Urban
Wohnfläche
Zimmer
Kaufpreis
Wohnanlage Schwaz Urban
Wohnfläche
Zimmer
Kaufpreis
Wohnanlage Schwaz Urban
Wohnfläche
Zimmer
Kaufpreis



