Beschreibung
Willkommen zuhause – Ihr neues Wohnprojekt in Spillern bei Korneuburg
Fragen Sie gerne nach unserem Immobilienfolder an, sämtliche Wohnungen auf www.mast-immo.at
Inmitten der grünen Weite des Weinviertels und doch in unmittelbarer Nähe zur Stadt Korneuburg entsteht ein Wohnbauprojekt, das modernes Wohnen mit ländlicher Ruhe auf ideale Weise verbindet. In Spillern, nur wenige Fahrminuten von Wien entfernt, realisieren wir 38 hochwertige Eigentumswohnungen – perfekt für Familien, Paare und Singles, die ein Zuhause mit Lebensqualität suchen.
Wohnen im Grünen – mit allem, was das Herz begehrt
Die Wohnungen sind zwischen ca. 43 m² und 90 m² groß und bieten durchdachte Grundrisse, helle Räume sowie großzügige Freiflächen wie Balkone, Terrassen oder Eigengärten. Die Ausstattung ist modern, hochwertig und auf ein langfristig angenehmes Wohngefühl ausgelegt.
Highlights des Projekts:
-
38 Wohneinheiten mit 2 bis 4 Zimmern (aufgeteilt auf 2 Trakte)
-
Großzügige Balkone, Terrassen oder Gärten
-
Ruhige, grüne Lage nahe dem Naherholungsgebiet Donauauen
-
Fußläufige Anbindung an Bahn und Nahversorgung
-
Hochwertige Ausstattung & nachhaltige Bauweise
-
PKW-Stellplätze optional erhältlich (zu je 15.000,-- €)
-
Geplante Fertigstellung: 01.10.2025
-
Photovoltaikanlage
Raumaufteilung:
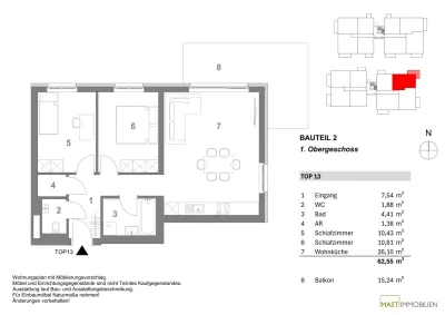
Eine beeindruckend aufgeteilte 3 Zimmer Balkonwohnung in Ausmaß von ca. 62 m² in östlicher Ausrichtung. Nach Eintritt in die Wohnung gelangen Sie ins Vorzimmer mit ca. 7,40 m². Das ca. 26 m² große Wohnzimmer bietet einen direkten Zugang auf den Balkon im Ausmaß von knapp 15 m². Die beiden Schlafzimmer sind ca. 11 m² groß und bieten daher ausreichend Platz für Ihre Möbel. Das modern & exklusiv gestaltete Badezimmer wird mit einer Wanne, WM-Anschluss und Waschbecken ausgestattet. Selbstverständlich ist das WC inkl. Handwaschbecken, separat begehbar. Der Abstellraum ist ca. 1,43 m².
Lage, die begeistert
Spillern vereint das Beste zweier Welten: Die Ruhe und Natur einer ländlichen Umgebung – und die Nähe zu urbaner Infrastruktur. Mit der Schnellbahn erreichen Sie Wien in ca. 30 Minuten, während Sie direkt vor der Haustür Spaziergänge, Radwege und Natur pur genießen können.
Jetzt vormerken – Ihr neues Zuhause wartet!
Nutzen Sie die Gelegenheit und sichern Sie sich jetzt eine der begehrten Wohnungen in diesem außergewöhnlichen Neubauprojekt. Ob zur Eigennutzung oder als nachhaltige Wertanlage – hier investieren Sie in Lebensqualität.
Ich freue mich darauf, Ihnen dieses Projekt persönlich vorzustellen!
Mit besten Grüßen,
Herr Manuel Daniloglu
0676 - 342 77 18
md@mast-immo.at
MAST Immo GmbH
Wir weisen darauf hin, dass zwischen dem Vermittler und dem zu vermittelnden Dritten ein familiäres oder wirtschaftliches Naheverhältnis besteht.
Pläne
Lagebeschreibung
Korneuburg, Stockerau
Anbieter kontaktieren
Weitere Objekte in diesem Projekt
Wohnen in Ihrem neuen Wohn(T)raum - Schlüsselfertiger ERSTBEZUG direkt in Spillern
Wohnfläche
Zimmer
Kaufpreis
Wohnen in Ihrem neuen Wohn(T)raum - Schlüsselfertiger ERSTBEZUG direkt in Spillern
Wohnfläche
Zimmer
Kaufpreis
Wohnen in Ihrem neuen Wohn(T)raum - Schlüsselfertiger ERSTBEZUG direkt in Spillern
Wohnfläche
Zimmer
Kaufpreis
Wohnen in Ihrem neuen Wohn(T)raum - Schlüsselfertiger ERSTBEZUG direkt in Spillern
Wohnfläche
Zimmer
Kaufpreis





















