Beschreibung
Judenburg / Teuffenbachstraße 37 / Top 4
Es steht eine schöne Dreizimmerwohnung mit Balkon in ruhiger Lage zur Vermietung.
Diese befindet sich in einem ruhigen und gepflegten Haus mit insgesamt nur vier Parteien.
Der große Garten wird gemeinschaftlich genutzt.
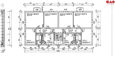
Das sanierte Objekt bietet 81m² Wohnfläche mit attraktivem Grundriss und ordentlichen Raumgrößen.
Aufgeteilt in eine Küche, großem Wohnzimmer, geräumigen Schlafzimmer, Kinderzimmer,
neues Badezimmer/WC und Flur. Optimal ausgerichtet sind die Räume hell und lichtdurchflutet.
Weiteren Stauraum bietet das zugeordnete Kellerabteil.
Monatliche Miete inkl. Mwst und Betriebskosten: € 643
Der Immobilienmakler erklärt, dass er – entgegen dem in der Immobilienwirtschaft üblichen Geschäftsgebrauch des Doppelmaklers – einseitig nur für den Vermieter tätig ist.
Sie sind an weiteren Wohnungs- bzw. Gewerbeangeboten interessiert? Ein vielfältiges Angebot finden Sie auf unserer Website.
Zur WAG-Immobiliensuche: SUCHE
Zur WAG-Wohnungsanmeldung: Wohnungsanmeldung
Gerne beraten wir Sie persönlich über unser vielfältiges Angebot, rufen Sie uns einfach an! Und das natürlich ohne Vermittlungsgebühren und provisionsfrei!
Angaben sind ohne Gewähr auf Richtigkeit und Vollständigkeit. Druckfehler vorbehalten.
Pläne






