Beschreibung
Großzügiges Büro in Pasching zu mieten: 333m², 10 Zimmer, Top Lage!
Dieses großzügige Büro befindet sich in einer ruhigen und dennoch zentralen Lage in Pasching – beste Lage zwischen Linz und Wels. Die ausgezeichnete Verkehrsanbindung über die Autobahn, Busverbindungen sowie die unmittelbare Nähe zum Flughafen Linz machen den Standort besonders attraktiv für Ihr Unternehmen. Vier Besucherparkplätze direkt vor dem Gebäude sowie eine moderne E-Ladestation sorgen für Komfort und Nachhaltigkeit. Mitarbeiterparkplätze stehen auf einer nahegelegenen öffentlichen Fläche zur Verfügung. Mit ca. 333 m² Gesamtfläche und 9 Büroräumen (inkl. Besprechungsraum) bietet die Immobilie vielfältige Gestaltungsmöglichkeiten. Ob Großraumbüro, Besprechungsräume oder separate Arbeitsbereiche – hier können Sie Ihre Räume flexibel an Ihre Anforderungen anpassen. Perfekt geeignet für Planungsbüros, Architekten, IT-Unternehmen und ähnliche Branchen, die Wert auf eine zentrale, gut erreichbare Lage und großzügige Arbeitsflächen legen.
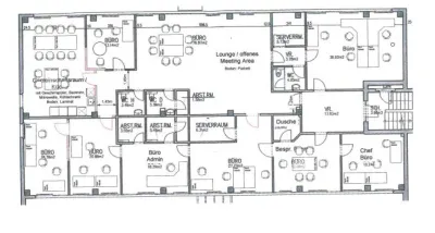
Raumaufteilung
Empfang - 8 Büroräume- Besprechungsraum - Technikraum/Serverraum - Küche - 5 getrennte Sanitäranlagen - Dusche - 4 Kundenparkplätze inkl. E-Ladestation - Mitarbeiterparkplätze
Lage
Das Büro befindet sich in Pasching. Sie liegt in unmittelbarer Nähe zur Plus City und ist gut mit dem Bus erreichbar. In der Umgebung gibt es verschiedene Gewerbebetriebe und Wohnhäuser. Die Lage ist zentral und verkehrsgünstig, sodass sowohl Kunden als auch Mitarbeiter gut zu erreichen sind.
Sie haben Interesse?
Ansehen lohnt sich - wir freuen uns über Ihr Interesse! Für weitere Fragen stehen wir Ihnen gerne unter der Rufnummer 0664 998 84 059 zur Verfügung. Auf Wunsch stellen wir gerne einen Kontakt zu Finanzierungsexperten her.
Rechtliche Informationen
Bitte beachten Sie, dass aufgrund unserer ALLEINBEAUFTRAGUNG und Nachweispflicht für den Abgeber ausschließlich Anfragen unter Angabe Ihrer VOLLSTÄNDIGEN DATEN bearbeiten können (NAME, ANSCHRIFT, E-Mail, Telefonnummer). Explizit weisen wir daraufhin, dass alle Angaben nach bestem Wissen erstellt wurden. Irrtümer, Druckfehler und Änderungen vorbehalten. Für Auskünfte u. Angaben, die uns von Seiten der Eigentümer und Dritten zur Verfügung gestellt wurden, können wir keine Haftung übernehmen. Besichtigungen und Beratungen erfolgen kostenlos, lediglich im Falle einer erfolgreichen Vermittlung ist die gesetzliche Provision zur Zahlung fällig.
Haben Sie die richtige Immobilie noch nicht gefunden?
Dann registriere dich hier: https://girkinger-immobilien.at/suchagent/#section-2-113717
Der Vermittler ist als Doppelmakler tätig.
Pläne


























