Beschreibung
Bei dem Objekt handelt es sich um das gesamte Erdgeschoß eines Hauses zentral in Köflach. Die Flächen verteilen sich auf zwei kleinere Wohnungen - eine davon ist bereits saniert, die andere Wohneinheit wird derzeit saniert und umgebaut.
Es besteht hier auch die Möglichkeit das gesamte Haus, um einen Kaufpreis von € 242.000, zu erwerben.
Das Besondere an diesem Objekt:
- Zentrale Wohnlage mit Infrastruktur fußläufig.
- Bestand mit zwei Wohneinheiten.
- Großes Potential zum kleinen Preis.
- Kelleranteil mit weiterem Stauraum.
DIE WOHNUNGEN.
Die Wohnungen im Erdgeschoß haben zusammen ca. 95 m² Nutzfläche, eine Einheit mit ca. 45 m² und eine Einheit mit ca. 40 m².
Es handelt sich jeweils um 1-Zimmer-Wohnungen die auch sehr gut als Ferienwohnungen geeignet sind.
Ein Kelleranteil mit ca. 40 m² ist den Wohnungen zugehörig.
DIE BAULICHKEIT UND AUSSTATTUNG.
Das Haus wurde in Massiv-Bauweise errichtet und bietet eine solide Substanz, die im Laufe der Zeit renoviert und erhalten wurde. Das Dach wurde so zum Beispiel 2022 in Teilen saniert.
Das genaue Baujahr des Hauses wird noch erhoben, der Bestand ist jedoch über 100 Jahre alt und somit als Altbau einzustufen.
Die Wohneinheit mit 45 m² wurde bereits saniert, die Einheit mit 40 m² wird derzeit umgebaut und saniert.
In der sanierten Wohnung ist eine Infrarot-Heizung installiert.
Zur Beantwortung weiterer Fragen sowie für Besichtigungstermine stehe ich Ihnen gerne täglich - auch am Wochenende - von 08:00 bis 22:00 Uhr zur Verfügung.
Ich freue mich über Ihre Kontaktaufnahme,
Wilhelm Rossmair
+43 664 54 24 481
w.rossmair@aktivit.org
Hinweis gemäß Energieausweisvorlagegesetz: Ein Energieausweis wurde vom Eigentümer bzw. Verkäufer, nach unserer Aufklärung über die generell geltende Vorlagepflicht, sowie Aufforderung zu seiner Erstellung noch nicht vorgelegt. Daher gilt zumindest eine dem Alter und der Art des Gebäudes entsprechende Gesamtenergieeffizienz als vereinbart. Wir übernehmen keinerlei Gewähr oder Haftung für die tatsächliche Energieeffizienz der angebotenen Immobilie.
Der Vermittler ist als Doppelmakler tätig.
Erteilen Sie uns ihren Suchauftrag und profitieren Sie von vielen Vorteilen und exklusiven Angeboten!
Ganz einfach und kostenlos unter: Jetzt Suchauftrag eingeben.
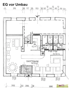
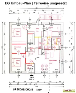
Pläne
Lagebeschreibung
Die Wohnungen befinden sich in zentraler Lage in Köflach, der Hauptplatz sowie viele öffentlichen Einrichtungen sind fußläufig gut erreichbar. Der Bahnhof mit direkter Verbindung nach Graz ist nur rund 500 Meter entfernt, mit dem KFZ ist die Landeshauptstadt ca. 30 Minuten entfernt. INFRASTRUKTUR UND VERSORGUNG: Die Lage der Wohnung bietet eine sehr gute Infrastruktur. Köflach verfügt über zahlreiche Dienstleister und Geschäfte, die den täglichen Bedarf decken. Der nächste Nahversorger befindet sich nur 250 Meter entfernt und ist bestens erreichbar. Apotheken, Banken und weitere Geschäfte liegen in einem Umkreis von nur 500 Metern. Die "Rathauspassage" nahe dem Hauptplatz ist rund 300 Meter entfernt, hier befinden sich auch viele gastronomische Betriebe. Vielfältige Einkaufsmöglichkeiten bietet die Shopping City Seiersberg im Süden von Graz, die in etwa 30 Minuten mit dem Auto erreicht werden kann. Die Stadt Graz selbst bietet ein umfassendes Angebot an Geschäften, Dienstleistungen und Freizeitmöglichkeiten. BILDUNGSEINRICHTUNGEN: Für Familien mit Kindern ist die Lage ideal. Der nächstgelegene Kindergarten befindet sich nur 600 Meter von der Wohnung entfernt, die nächste Volksschule ist nur ca. 100 Meter entfernt. Der Schulkomplex um das BG / BRG / BORG Köflach ist rund 1,1 Km entfernt. Die Landeshauptstadt Graz bietet ein umfassendes und breites weiteres Bildungsangebot. Über Angebote wie diverser Gymnasien und höhere Schulen bis zu renommierten Universitäten und Fachhochschulen. VERKEHRSANBINDUNG: Die Wohnung verfügt über eine sehr gute Verkehrsanbindung. Der Bahnhof von Köflach liegt ca. 600 Meter entfernt und kann so auch fußläufig gut erreicht werden. Hier bieten sich auch direkte Bahn-Verbindungen nach Graz. Mit dem KFZ ist Graz in ca. 30 Minuten erreichbar, Klagenfurt ist ca. 1h 15 Minuten entfernt und Wien ca. 2h 15 Minuten.














