Beschreibung
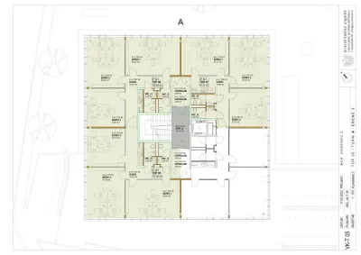
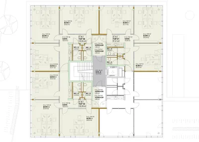
Die moderne Bürofläche umfasst 9 Büroräume, je 3 geschlechtergetrennte WCs sowie Teeküchen in den Gangbereichen. Für Komfort und angenehmes Arbeiten sorgen die elektrische Beschattung sowie die für jeden Raum einzeln steuerbare Heizung und Kühlung. Optional sind ausreichend Tiefgaragen-Stellplätze verfügbar.
Der Bürokomplex wurde 2023 in direkter Nachbarschaft zum Business Center Hagenau 1 an der L118 Oberndorferstraße errichtet. Die drei Gebäudeteile werden über eigene Eingänge erschlossen und sind über die gemeinsame Tiefgarage verbunden. Es sind 39 Büroeinheiten entstanden, die auf einer Ebene zu 200, 300 oder 400 m² Bürofläche inkl. Teeküche und Sanitärräume zusammengefasst werden können. In einem Gebäudeteil sind dadurch bis knapp 1.600 m² Bürofläche verfügbar.
Überblick:
- barrierefreier Zugang von der Tiefgarage
- Personenaufzug
- getrennte Sanitärräume in jedem Büro
- vollausgestattete Teeküche
- raumgesteuerte Heizung, Kühlung und Beschattung
- vorverkabelte Netzwerke
- VRV Wärmepumpensystem
- Heizung und Kühlung über flächenbündig verbaute Deckengeräte
- Photovoltaik-Anlage
- Parkflächen können optional angemietet werden und sind ausreichend vorhanden
- E-Ladestation am Parkplatz möglich
- Lager-/Abstellräume verfügbar
Pläne
Lagebeschreibung
Das Business Center Hagenau 2 befindet sich am nördlichen Stadtrand im Salzburger Ortsteil Hagenau, der die Stadt Salzburg mit der Gemeinde Bergheim verbindet. Der etablierte Bürostandort zeichnet sich durch die gute Verkehrsanbindung aus. Die Lage an einer der wichtigsten Einfahrtstraßen in die Stadt Salzburg sowie die Nähe zur Autobahn garantieren kurze Anfahrtswege zu Flughafen, Bahnhof und Innenstadt. Auch die Gewerbegebiete in Bergheim und die Wirtschaftsstandorte im Flachgau und Innviertel sind schnell erreichbar. Durch die Lokalbahn-Haltestelle ist Hagenau auch gut an das öffentliche Verkehrsnetz angebunden.
Anbieter kontaktieren
Weitere Objekte in diesem Projekt
300 m² Bürofläche in Hagenau
Nutzfläche
Zimmer
Nettomiete
Klimatisierte 200 m² Bürofläche
Nutzfläche
Zimmer
Nettomiete
Moderne Büroflächen ab 90 m²
Nutzfläche
Zimmer
Nettomiete
















