Beschreibung
Sie benötigen einen ruhigen Ort zum Arbeiten dann haben wir das richtige Büro für Sie.
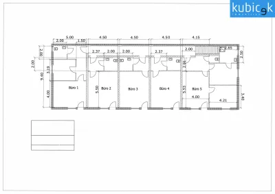
Es sind Büros von 35-61 m² vorhanden. Diese befinden sich in einem Neubau und verfügen jeweils über eine Infrarotheizung, Laminatböden und Sanitärbereich. An Anschlüssen sind Strom bzw. Starkstrom, Internet und Telefonanschluss möglich. Auch eine große Garage kann angemietet werden.
Büro Top 2 im 1. Stock mit einer Nutzfläche von rund 34 m².
Büroraum mit Ausgang auf den südseitigen Balkon, Waschraum mit WC, Waschtisch und Waschmaschinenanschluss.
(Duscheinbau möglich) und Vorzimmer. Das Büro verfügt über einen Mediaverteiler, Laminatboden und eine Infrarotheizung.
Noch nichts gefunden? Wir informieren Sie unverbindlich über geeignete Immobilienangebote noch vor allen anderen.
Legen Sie jetzt Ihren individuellen Suchagenten unter folgendem Link an. Wir schicken Ihnen passende Immobilien exklusiv vorab zu.
Suchagent anlegen - https://immo-kubicek.service.immo/registrieren/de
Hinweis gemäß Energieausweisvorlagegesetz: Ein Energieausweis wurde vom Eigentümer bzw. Verkäufer, nach unserer Aufklärung über die generell geltende Vorlagepflicht, sowie Aufforderung zu seiner Erstellung noch nicht vorgelegt. Daher gilt zumindest eine dem Alter und der Art des Gebäudes entsprechende Gesamtenergieeffizienz als vereinbart. Wir übernehmen keinerlei Gewähr oder Haftung für die tatsächliche Energieeffizienz der angebotenen Immobilie.
Ihre Immobilie – unsere Kunden: Perfekte Vermittlung seit über 90 Jahren.
Wir bringen seit mehr als 90 Jahren erfolgreich Immobilienbesitzer und Käufer/Mieter zusammen. Ob Haus, Grundstück oder Wohnung – für unsere 1.300 vorgemerkten Kunden suchen wir derzeit Immobilien in Wien und Niederösterreich.
Als stolzer Träger des IMMY-Qualitätspreises stehen wir für höchste Servicequalität und freuen uns darauf, Sie persönlich zu beraten.
Kontaktieren Sie uns noch heute!
immo-kubicek.at| +43 1 2031168-0
Pläne
Lagebeschreibung
Oberhausen, ein Ortsteil von Groß-Enzersdorf, liegt unweit der Bundeshauptstadt Wien. Eine ausgezeichnete Infrastruktur und eine Anbindung an das öffentliche Verkehrsnetz ist somit voll gewährleistet. Die Autobuslinie 26A verkehrt bis zum Ortszentrum Groß-Enzersdorf - Busbahnhof. Die Verbindung nach Oberhausen ist durch einen Regionalbus gegeben. In Groß-Enzersdorf selber sind Apotheken, Schulen und diverse Einkaufsmöglichkeiten vorhanden. Durch die unmittelbare Nähe zur Donau und der Lobau bietet sich ein wunderbares Erholungsgebiet für Sparziergänge, Wanderungen und Radausflüge.



