Beschreibung
Exklusive Designer-Doppelhaushälften mit Garten & Dachterrasse in urbaner Ruhelage – 1210 Wien
In einer der attraktivsten Wohngegenden des 21. Bezirks entstehen zwei moderne, architektonisch durchdachte Designerhäuser – stilvoll geplant für Menschen mit gehobenem Anspruch. Großzügige Freiflächen, lichtdurchflutete Räume und durchdachte Grundrisse vereinen sich mit einer hervorragenden Lage in stadtnaher Ruhelage – perfekt für Familien, Berufstätige und alle, die Lebensqualität mit Stadtkomfort kombinieren möchten.
Überzeugen Sie sich selbst, vereinbaren Sie einen unverbindlichen Beratungstermin. Wir freuen uns sehr auf ein persönliches Gespräch mit Ihnen!
Das Wohnkonzept – durchdacht bis ins Detail
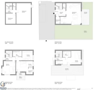
- Erdgeschoss – Raum für Begegnung
Offener Wohnsalon mit Zugang zum Garten, elegante Küche mit großzügiger Gestaltung, raumhohe Fensterfront zur Terrasse – der ideale Treffpunkt für Familie und Gäste.
- Obergeschoss – Privatsphäre & Geborgenheit
Drei helle Zimmer, ein Balkon, ein Schrankraum sowie ein stilvolles Bad mit Wanne – hier entsteht ein Ort zum Zurückziehen und Wohlfühlen.
- Dachgeschoss – Ihr exklusives Refugium
Mit ca. 36 m² Wohnfläche, eigenem Bad, Kosmetikbereich und einer großflächigen Terrasse mit Weitblick bietet dieses Geschoss ein besonderes Highlight für entspannte Abende in der Abendsonne – ganz privat.
- Kellergeschoss – Mehr Raum für Ideen
Ca. 55 m² zusätzliche Fläche für Hobbies, Lagerung oder Fitness – inkl. Technik- & Abstellraum.
Ausstattung & Highlights:
- Design trifft Funktion – moderne Architektur mit klaren Linien
- Große Freiflächen: Garten, Balkon, Dachterrasse
- Elektrische Raffstores & Rollläden
- Fußbodenheizung & Deckenkühlung für ganzjährigen Komfort
- Luft-Wasser-Wärmepumpe – energieeffizient & zukunftssicher
- Leerverrohrung für PV-Anlage bereits vorbereitet
- Belagsfertig oder schlüsselfertig – ganz nach Ihren Wünschen
- Massivbauweise in Topqualität durch erfahrene Bauträger
Lage, Infrastruktur & Mobilität – Stadt. Natur. Zuhause.
Diese exklusiven Doppelhaushälften befinden sich in einem ruhigen, begrünten Teil des 21. Bezirks – eine Gegend, die sich durch hohe Lebensqualität, beste Infrastruktur und ein familienfreundliches Umfeld auszeichnet.
Freizeit & Naherholung:
- Nur wenige Minuten zu beliebten Erholungsgebieten wie dem Marchfeldkanal, den Donauauen, dem Stammersdorfer Heurigenviertel oder dem Bisamberg
- Vielfältige Freizeitangebote: Radwege, Spazierwege, Reitställe, Tennis- & Fußballplätze sowie Spielplätze in der Umgebung
- Für Familien besonders attraktiv: grüne Parks, ruhige Wohnstraßen und nahegelegene Kindergärten, Schulen & Sportanlagen
Optimale Verkehrsanbindung:
- Buslinien und Straßenbahnlinien (z. B. Linie 30/31) in fußläufiger Nähe
- U1 & U6 in wenigen Minuten erreichbar – perfekte Anbindung ans Stadtzentrum
- Schnellstraßenanschluss (S2, A22, B3) in kurzer Fahrdistanz – ideal auch für Pendler:innen oder Wochenendausflüge
Sehr gute Infrastruktur:
- Vielfältige Einkaufsmöglichkeiten (Supermärkte, Bäckereien, Apotheke) in unmittelbarer Nähe
- Nahversorgung durch zahlreiche Restaurants, Cafés, Ärztezentren, Drogerien etc.
- Zahlreiche Bildungseinrichtungen wie Volksschulen, Mittelschulen und Musikschulen befinden sich im direkten Umkreis
- Fazit: Die perfekte Kombination aus Ruhe, Natur, urbaner Nähe und hoher Alltagspraktikabilität.
Vermerk: Wir weisen auf ein wirtschaftliches Naheverhältnis zum Abgeber hin. Alle Abbildungen dienen der Visualisierung und sind beispielhaft. Abweichungen in Planung und Ausführung – insbesondere aufgrund behördlicher Vorgaben, technischer Entwicklungen oder Lieferengpässen – sind vorbehalten. Die angegebene Ausstattung entspricht dem aktuellen Planungsstand. Einrichtungsgegenstände sind nicht Teil des Kaufpreises. Alle Angaben ohne Gewähr. Für die Richtigkeit und Vollständigkeit der Informationen, die uns vom Eigentümer zur Verfügung gestellt wurden, übernehmen wir keine Haftung.
Wir weisen darauf hin, dass zwischen dem Vermittler und dem zu vermittelnden Dritten ein familiäres oder wirtschaftliches Naheverhältnis besteht.
Der Vermittler ist als Doppelmakler tätig.
Pläne
Anbieter kontaktieren
Weitere Objekte in diesem Projekt
Vom Licht durchflutet, von Raum umgeben – exklusive DH-Hälfte für urbane Genießer
Wohnfläche
Zimmer
Kaufpreis
Exklusive Designer-Doppelhaushälfte mit Garten & Dachterrasse in urbaner Ruhelage
Wohnfläche
Zimmer
Kaufpreis





