Beschreibung
In einem architektonisch besonders ansprechenden Neubau aus 2020 – im gediegenen Grinzing im 19. Bezirk – stehen noch 3 Wohnungen in ruhiger Nachbarschaft für den sofortigen Erstbezug zum Verkauf.
Die hochwertigen Materialien fallen beim Betreten der Wohnungen sofort ins Auge – in den Wohnräumen wurde ein warmer Holzdielenboden verlegt, die Bäder wurden mit Steinfliesen, exklusiver Keramik sowie zeitlosen Armaturen ausgestattet. Trotz der großzügigen Fensterfronten wird den zukünftigen Bewohnern maximale Privatsphäre aufgrund der angrenzenden sowie gegenüberliegenden Grün- und Gartenflächen geboten. Die Küchen sind bereits mit hochwertigen Geräten vollausgestattet und einsatzbereit.
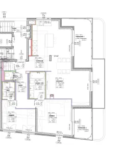
Die Einheit Stiege 1 / Top 4 befindet sich im 2. Liftstock, bietet einen zentralen Wohnbereich, zwei Schlafzimmer, zwei Bäder, ein separates WC, einen Abstellraum und zwei Terrassen.
Objekttyp:
- Wohnungseigentum
Wohnungsgrößen:
- Wohnnutzfläche: A ~ 99 m² (lt. Plan)
- Terrasse: A ~ 33 m²
- Kellerabteil: A ~ 3 m²
Heizung/Warmwasser:
- Luft-Wärmepumpe
Besondere Ausstattungsmerkmale:
- Barrierefreier Wohnungszugang (Lift)
- Fußbodenheizung und Fußbodenkühlung, Luftwärmepumpe
- Außenliegende, elektrisch betriebene Aluminium Raffstores
- Einbau-Tischler-Garderoben-Schränke
- Gaskamine
- Hochwertige Steinfliesen und Parkett-Dielenböden
- Vollausgestattete Markenküchen
- Exklusive Keramik, zeitlose Armaturen
- Haus-SAT-Anlage
- ...
Parkmöglichkeit:
- Pro Wohneinheit können Tiefgaragen-Stellplätze erworben werden.
Kaufpreise:
- Kaufpreis exkl. Tiefgaragenstellplatz
- Der Verkauf erfolgt im Zuge eines Insolvenzverfahrens provisionsfrei für den Käufer / die Käuferin.
Projektstatus:
- Fertiggestellt
Unverbindliches, freibleibendes Angebot. Die Angaben erfolgen aufgrund von Informationen und Unterlagen vom Eigentümer und/oder von Dritten und sind ohne Gewähr. Vorbehaltlich Änderungen, Druck- und Satzfehler, Stand: März 2025.
Noch nichts gefunden? Wir informieren Sie zeitnah über geeignete Immobilienangebote.
Legen Sie jetzt Ihren individuellen Suchagenten unter folgendem Link an. Wir schicken Ihnen passende Immobilien exklusiv vorab zu.
Suchagent anlegen
Der Vermittler ist als Doppelmakler tätig.
Pläne
Lagebeschreibung
Herrlich in der beliebten Gemeinde Grinzing gelegen, umgeben von viel Grün und Natur und dennoch innerstädtisch und zentrumsnah, zählt diese Gegend zu den begehrtesten Wohnlagen ganz Wiens. Hier trifft ländliches Flair auf urbane Lebensqualität - eine unwiderstehliche Einladung, das Leben zu genießen. Zur Nutzung der öffentlichen Verkehrsanbindung erreicht man die Bushaltestelle 38A binnen einer Minute fußläufig und hat somit innerhalb kurzer Zeit Anschluss an die Bus- und Schnellbahn- sowie U-Bahnstation Heiligenstadt. Von der Station Grinzing gelangt man mit der Tramlinie 38 in nur 25 Minuten ohne Umsteigen in die Wiener City. Zahlreiche Heurige und Restaurants in direkter Umgebung laden zum entspannten Genießen mit besonderer Kulinarik ein. Ausgewählte Nahversorger - Spar Gourmet und Billa – sind in kürzester Zeit am Grinzinger Platzl stressfrei zu erreichen, ebenso wie die Volksschule und Hochschule „HLW19“ in der Straßergasse.
Anbieter kontaktieren
Weitere Objekte in diesem Projekt
Family Residences - Ehem. Grinzinger Bergstraße 129 | Top 2.1
Wohnfläche
Zimmer
Kaufpreis
Family Residences - Ehem. Grinzinger Bergstraße 129 | Top 2.1
Wohnfläche
Zimmer
Bruttomiete
RESERVIERT - Family Residences - Ehem. Grinzinger Bergstraße 129 | Top 2.3
Wohnfläche
Zimmer
Kaufpreis
Family Residences - Ehem. Grinzinger Bergstraße 129 | Top 1.4
Wohnfläche
Zimmer
Kaufpreis









