Beschreibung
Wiener Eleganz modern interpretiert
- Repräsentative Lage: Begehrte Adresse am Widerhoferplatz 1 ruhig und doch zentral
- Sanierte historische Stilaltbauwohngen:
- Wohnflächen von 104 bis 228 m², 3 bis 6 Zimmer
- Raumhöhen bis zu 3,65 m, stilvolle Gründerzeit-Atmosphäre
- Vollständige Sanierung unter Erhalt architektonischer Details
- Historisches Flair und moderne Ausstattung:
- Französisches Fischgrätparkett, prachtvolle Stuckleisten, traditionelle Kastenfenster mit Laibungen, hohe Türen im Alt-Wien Stil
- teils mit nachhaltiger Luftwärmepumpe
- Fußbodenheizung in allen Räumen für wohlige Wärme
- Exklusive Bäder mit freistehender Badewanne, Doppelwaschtischen, Markenarmaturen und Marmoroptik-Feinsteinzeug
- Sicher und smart:
- Eingangstüren im klassischen Design „Alt Wien“ mit Sicherheitsstandard WK3
- Innovative Smart-Home-Steuerung (Button-Intelligent-Living): Beleuchtung, Temperatur u.v.m. steuerbar per iPad (inkl. Wandhalterung und Ladestation)
- Dezente und elegante Beleuchtung von Wand, Boden und Decke
- Freiflächen: Balkone, Terrassen und ein idyllischer Garten mit Grünblick
- Zeitloses Wohngefühl:
- Perfekte Harmonie zwischen historischem Charme und modernen Ansprüchen
- Barrierefreier Zugang dank Aufzug und Rampen
- Großzügige, lichtdurchflutete Räume mit unvergleichlichem Ambiente
Ein Meisterwerk Wiener Baukunst – für Kosmopoliten, die das Besondere suchen.
Aktuell stehen zusätzlich 2 Herrschaftswohnungen mit 227 m² und 228 m² zum Verkauf. Optional können diese auch im selben Sanierungsstil wie die anderen Erstbezüge erworben werden.
Auto- und Motorradstellplätze ermöglichen auf Wunsch das komfortable Parken in der hauseigenen Tiefgarage:
- Hebebühne - EUR 55.000,--
- Motorradstellplatz - EUR 20.000,-
Lage am Alsergrund – Ärzte-, Bildungs- und Kulturviertel
- Medizinisches Zentrum:
- Nähe zu renommierten Einrichtungen wie AKH, St. Anna Kinderspital und Krankenanstalt Goldenes Kreuz
- Historischer Bezug: Altes AKH heute Universitätscampus mit Instituten und kulinarischen Hotspots
- Kulturelle Highlights:
- Volksoper in der Währinger Straße: Oper, Operetten, Musicals und Ballett
- Liechtensteinpark mit barockem Gartenpalais: Erholung und Einblick in fürstliche Lebenswelt
- Bildungsstandort: Tradition als Gesundheits- und Universitätsviertel, geprägt von Wissen und Forschung
- Exzellente Nahversorgung:
- Ausgezeichnete Restaurants wie Paco (Tapas) oder Café Weimar (klassische Wiener Küche)
- Einkaufsmöglichkeiten und Dienstleistungen in unmittelbarer Umgebung
- Hervorragende Anbindung:
- Straßenbahnlinien in der Währinger Straße mit flotter Innenstadt Route
- U6-Station Währinger Straße/Volksoper für schnellen Zugang ins historische Zentrum und den Rest der Stadt
Eine perfekte Symbiose aus medizinischer Expertise, kulturellem Reichtum, grüner Erholung und urbanem Lebenskomfort.
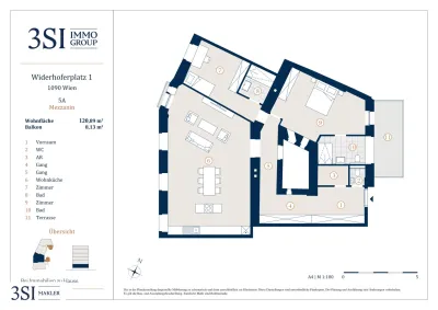
Stiege 1 - Top 5a
Zum Verkauf gelangt eine einzigartige Wohnung mit einer Gesamtgröße von knapp ca. 121 m² mit luxuriöser Ausstattung und Balkon!
Diese geräumige 3-Zimmer-Wohnung verbindet den Charme eines traditionellen Wiener Jugendstilhauses mit modernem Komfort und stilvollem Design. Jeder Raum wurde sorgfältig geplant und gestaltet, um ein Höchstmaß an Wohnqualität zu schaffen. Von hochwertigen Materialien über exquisites Interieur bis hin zu modernster Technologie ist diese Wohnung ein wahres Juwel. Tauchen Sie ein in eine Welt des Komforts und der Eleganz und genießen Sie das großzügige Raumangebot, das perfekt für Familien, Paare oder diejenigen ist, die den Luxus des Wohnens in einer historischen Liegenschaft schätzen.
Die Wohnung befindet sich derzeit in Sanierung und liegt im 1. Stock und teilt sich wie folgt auf:
- Vorraum
- Wohn-/Essbereich
- 2 Zimmer
- 2 Bäder mit WC
- Gäste-WC
- Schrankraum
- Abstellraum
- Balkon
Es gibt auch die Möglichkeit ein weiteres Zimmer zu schaffen, dadurch würde sich der Wohn-/Essbereich schmälern.
Nebenkosten
Der guten Ordnung halber halten wir fest, dass, sofern im Angebot nicht anders vermerkt, bei erfolgreichem Abschlussfall eine Provision anfällt, die den in der Immobilienmaklerverordnung BGBI. 262 und 297/1996 festgelegten Sätzen entspricht – das sind 3 % des Kaufpreises zzgl. 20 % USt. Diese Provisionspflicht besteht auch dann, wenn Sie die Ihnen überlassenen Informationen an Dritte weitergeben. Letztlich weisen wir darauf hin, dass wir als Doppelmakler tätig sind und ein familiäres/wirtschaftliches Naheverhältnis zwischen der 3SI Makler GmbH und der Verkäuferin besteht.
Die Vertragserrichtung und Treuhandabwicklung ist gebunden an die Kanzlei Dr. Michael Wagner A-1190 Wien, Muthgasse 26. Die Kosten betragen 1,5 % des Kaufpreises zzgl. 20 % USt. sowie Barauslagen und Beglaubigung.
Der Vermittler ist als Doppelmakler tätig.
Pläne
Lagebeschreibung
Arne-Karlsson-Park / Altes AKH / Botschaftsviertel
Anbieter kontaktieren
Weitere Objekte in diesem Projekt
Grand Park Residence: Edle 3-Zimmer-Wohnung mit Balkon
Wohnfläche
Zimmer
Kaufpreis
Ihr Stil. Ihre Räume. Ihr Zuhause. – so individuell wie Sie.
Wohnfläche
Zimmer
Kaufpreis
Grand Park Residence: Herrschaftlicher Altbau mit Weit- und Grünblick
Wohnfläche
Zimmer
Kaufpreis












