Beschreibung
Winteraktion: Jetzt Nebenkosten sparen!*
Sichern Sie sich jetzt Ihre Wohnung in Gretls Garten
Am ruhigen, grünflächigen Rand des neuen Stadtquartiers gelegen, entsteht „Gretls Garten“: Bei dem Wohnobjekt mit 118 frei finanzierten Eigentumswohnungen ist der Name Programm, denn die großzügigen Wohneinheiten verfügen alle über Freiflächen: Neben Balkonen, Loggien und Terrassen besteht auch die Möglichkeit, eine Eigentumswohnung mit einem kleinen aber feinem Eigengarten zu erwerben.
Der Familientraum von Wohnen in Wien und im Grünen ist näher als Sie denken …
*Wir feiern den Winter bis zur Schneeschmelze! In der kalten Jahreszeit lassen wir die Preise schmelzen: Beim Kauf einer Eigentumswohnung in einem unserer Objekte in der Berresgasse (Jonas am Feld, Gretls Garten oder Leo am Teich) bis 31.03.2026 die Nebenkosten* sparen und jede Wohnung um 6,5 % günstiger erwerben. Darüber hinaus verschenken wir einen Einrichtungsgutschein im Wert von 1.000 Euro für jedes Zimmer!
*) Während der Aktion werden die Verkaufspreise um 6,5 % reduziert. Dies entspricht den durchschnittlichen Nebenkosten beim provisionsfreien Wohnungskauf (1,9 % Vertragserrichtung, 3,5 % Grunderwerbsteuer, 1,1 % Eintragungsgebühr). Die auf Basis des reduzierten Kaufpreises berechneten Nebenkosten sind über den Treuhänder zu begleichen. Eine mögliche Gebührenbefreiung gem. § 25a iVm § 25b Gerichtsgebührengesetz kann zusätzlich in Anspruch genommen werden. Der Einrichtungsgutschein wird bei Wohnungsübergabe übergeben und ist nicht in bar ablösbar.
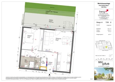
Pläne
Lagebeschreibung
In der Donaustadt entsteht ein besonders attraktives Stadtquartier mit Wohnungen, Geschäften, Lokalen, Freiraum und zahlreichen Gemeinschafts- und Mobilitätsangeboten. Auch die Natur kommt nicht zu kurz, denn in unmittelbarer Nähe befindet sich der Badeteich Hirschstetten sowie die gleichnamigen, weitläufigen Blumengärten. Hinsichtlich der öffentlichen Anbindung gibt es zahlreiche Optionen: Die U2 (Haltestelle Hausfeldstraße) erreicht man fußläußig innerhalb von zehn Minuten. Die Haltestelle der Straßenbahn-Linie Prinzgasse ist 350 Meter entfernt; die Buslinien 85A und 95 A (Haltestelle Pirquetgasse) 150 Meter. In 300 bzw. 350 Metern Entfernung befinden sich die Buslinien 95B und 97 A (Haltestelle Zanggasse). Und wer mag, ist innerhalb von 20 Minuten in der Wiener Innenstadt.
Anbieter kontaktieren
Weitere Objekte in diesem Projekt
Gretls Garten - Wohnen beim Badeteich Hirschstetten
Wohnfläche
Zimmer
Kaufpreis
Gretls Garten - Wohnen beim Badeteich Hirschstetten
Wohnfläche
Zimmer
Kaufpreis
Gretls Garten - Wohnen beim Badeteich Hirschstetten
Wohnfläche
Zimmer
Kaufpreis
Gretls Garten - Wohnen beim Badeteich Hirschstetten
Wohnfläche
Zimmer
Kaufpreis






