Beschreibung
Nur wenige Gehminuten vom Zentrum Mödlings entfernt in der Nähe des Wienerwaldes entsteht in der Quellenstraße 9 mit „Midori Living“ eine Wohnhausanlage, dessen Ausstattung und die Umgebung den Projektnamen widerspiegeln: Midori, das japanische Wort für grün bezieht sich auf die begrünten Fassaden, die Nähe zur grünen Umgebung und auf den japanischen Garten als Gestaltungselement in der Anlage.
Das Projekt „Midori Living“
Die 24 frei finanzierten Eigentumswohnungen verfügen über Wohnflächen von 32 m² bis 85 m² (von 1 bis 4 Zimmern) und bieten Platz für Paare und Familien gleichermaßen. Einige Wohnungen verfügen auch über Eigengärten: So sind zwei 4-Zimmer-Wohungen im Erdgeschoß mit großzügigen 300 beziehungsweise über 400 Quadratmetern Gartenfläche ausgestattet. Ein Tiefgaragenstellplatz kann zusätzlich erworben werden und kostet 25.000 Euro. Es stehen 36 Stellplätze zur Verfügung.
Die Anlage ist in Quaderform gestaltet und wird von begrünten Fassaden und einem Gründach ummantelt. Vor dem Eingang wird ein japanischer Garten den Eingang zieren, der mit Kieswegen, stilvollen Pflanzen und ruhigen Gestaltungselementen eine besondere Atmosphäre schafft. Die Freiflächen bestehen aus Terrassen, Balkonen und Eigengärten. Im grünen Innenhof ist ein Naturspielplatz vorgesehen und eine Gemeinschaftsgarten. Begrünte Fassaden und ein ökologisches Gründach tragen zu einem angenehmen Mikroklima bei.
Die Wohnanlage punktet aber auch mit durchdachten Details: Ein Fahrrad- und Kinderwagenabstellplatz sowie barrierefreie Liftanlagen sorgen für ein Plus an Komfort. Für umweltbewusste Mobilität steht eine eigene E-Ladestation zur Verfügung. Die Wohnungen werden über ein energieeffizientes Fernwärmesystem beheizt, das niedrige Betriebskosten und nachhaltiges Wohnen ermöglicht.
Midori Living punktet somit nicht nur nach außen, sondern auch nach innen mit grünen Werten.
Midori-Living-Rundgang in 3D: Eine der Erdgeschosswohnungen freut sich auf Ihren virtuellen Besuch.
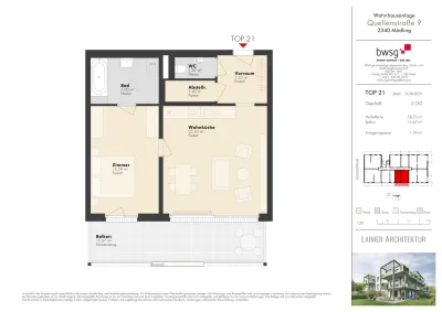
Pläne
Lagebeschreibung
Quellenstraße 9, 2340 Mödling: Die Vorteile von städtischer Infrastruktur verbunden mit den Freizeitmöglichkeiten des Wienerwalds: Das ist die Lage von Midori. In der Umgebung laden der Naturpark Föhrenberge und die Burgruine Mödling zu Wanderungen und Spaziergängen ein. Das Stadtbad Mödling sowie Outdoor-Fitnesseinrichtungen und zahlreiche Lauf- und Wanderstrecken im Wienerwald bieten ideale Gelegenheiten für sportliche Aktivitäten. Kulinarisch wartet die nahegelegene Fußgängerzone mit gemütlichen Cafés, Heurigen und modernen Restaurants auf. Die öffentliche Verkehrsanbindung ist ausgezeichnet. In der Nähe befinden sich mehrere Buslinien, darunter die 259, 261, 265, 268 und 269, sowie die Stadtbuslinien 1 und 3. Der Bahnhof Mödling liegt ebenfalls in der Nähe, mit regelmäßigen Schnellzügen, die Wien in etwa 25 bis 30 Minuten erreichen. Mit dem Auto dauert die Fahrt über die Südautobahn etwa 20 bis 30 Minuten, und für sportliche Radfahrer gibt es eine Route durch den Wienerwald, die rund 1 bis 1,5 Stunden dauert.
Anbieter kontaktieren
Weitere Objekte in diesem Projekt
Midori Living - Kunst des Wohnens
Wohnfläche
Zimmer
Kaufpreis
Midori Living - Kunst des Wohnens
Wohnfläche
Zimmer
Kaufpreis
Midori Living - Kunst des Wohnens
Wohnfläche
Zimmer
Kaufpreis
Midori Living - Kunst des Wohnens
Wohnfläche
Zimmer
Kaufpreis








