Beschreibung
Willkommen bei The River Terrace – Exklusives Wohnen am Donauhang
The River Terrace ist eine herausragende Wohnanlage am Nordosthang des Leopoldsbergs im begehrten 19. Wiener Bezirk. Hier entstehen sechs luxuriöse Wohneinheiten, die durch ihre außergewöhnliche Architektur und eine erstklassige Ausstattung bestechen. Jedes Haus wurde so gestaltet, dass modernes Design mit der Natur in Einklang steht – ein harmonisches Gesamtkonzept, das Eleganz und Lebensqualität auf höchstem Niveau bietet. Alle Häuser genießen einen unvergleichlichen Blick über die Donau und schaffen mit ihren klaren Linien und der harmonischen Einbindung in die grüne Hanglage ein unverwechselbares Wohnerlebnis.
Projekt-Highlights:
- Privatsphäre und Komfort: Die erhöhte Lage der Anlage bietet den Bewohnern maximale Privatsphäre und Ruhe, fernab vom Trubel der Stadt. Genießen Sie die entspannende Atmosphäre inmitten der Natur und lassen Sie den Blick über die Stadt und die Donau schweifen.
- Großzügige Außenbereiche: Jedes Haus verfügt über private Gärten und weitläufige Terrassen, die als erweiterte Wohnbereiche gestaltet wurden. Hier finden Sie den idealen Rückzugsort für gesellige Sommerabende und ruhige Momente im Freien.
- Exklusive Gemeinschaftseinrichtungen: Ein idyllischer Schwimmteich und eine komfortable Sauna stehen den Bewohnern zur gemeinschaftlichen Nutzung zur Verfügung – perfekte Rückzugsorte, um nach einem langen Tag zu entspannen.
- Innovativer Zugang und Mobilität: Der eigens für die Anlage installierte Schrägaufzug verbindet die beiden Grundstücksebenen und ermöglicht ein bequemes und barrierefreies Erreichen der Häuser, die sich auf unterschiedlichen Ebenen verteilen. So wird das tägliche Leben hier nicht nur komfortabel, sondern auch einzigartig in seiner Umsetzung.
- Smart Living und Nachhaltigkeit: Moderne Technologien wie Smart-Home-Steuerung und nachhaltige Energielösungen wie Photovoltaik-Anlagen und eine effiziente Fußbodenheizung sorgen für Komfort und Umweltbewusstsein im Alltag.
Lebensqualität auf höchstem Niveau: In The River Terrace erwartet Sie nicht nur ein neues Zuhause, sondern ein Ort der Inspiration und Entspannung. Die exklusive Wohnlage verbindet die Vorzüge modernen Wohnens mit der Kraft der Natur – ideal für all jene, die Stil, Ruhe und Komfort auf höchstem Niveau suchen. Ob als Rückzugsort oder als repräsentativer Wohnsitz, hier erleben Sie ein außergewöhnliches Lebensgefühl, das Sie in keiner anderen Wohnanlage finden werden.
Urban und doch im Grünen: Obwohl The River Terrace mitten in der Natur liegt, sind Sie dank der hervorragenden Verkehrsanbindung schnell im Zentrum Wiens. Die Nähe zu öffentlichen Verkehrsmitteln und zur Autobahn macht das Leben hier angenehm und flexibel. Mit dieser Wohnanlage entscheiden Sie sich für das Beste aus beiden Welten – exklusives, naturnahes Wohnen und die unmittelbare Nähe zur Wiener Innenstadt.
The River Terrace – Ihr neues Zuhause erwartet Sie.
Exklusives Wohnen mit Weitblick – Ihr Traumhaus in The River Terrace
Entdecken Sie das Leben neu in einem der sechs exklusiven Häuser des Projekts "The River Terrace" am Nordosthang des Leopoldsbergs, mitten im prestigeträchtigen Wiener Bezirk Döbling. In erhöhter Lage mit weitem Blick über die Donau vereint dieses Neubauhaus luxuriöses Design mit maximalem Wohnkomfort und erstklassiger Bauweise. Die Wohnräume sind lichtdurchflutet, die Außenbereiche großzügig gestaltet und die Materialqualität hebt sich auf höchstem Niveau – ein idealer Rückzugsort für anspruchsvolle Genießer.
Das Haus 1.
Highlights auf einen Blick
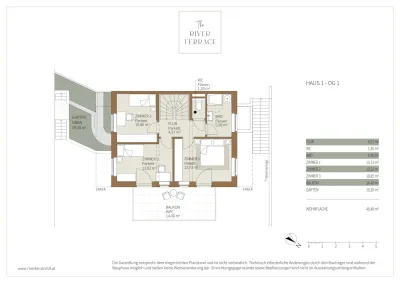
- Wohnfläche: Ca. 183,4 m², klug aufgeteilt auf 5 großzügige Zimmer
- Outdoor-Oase: Genießen Sie 120,67 m² Gartenfläche, eine Terrasse von 31,76 m² sowie 28,8 m² Balkonfläche – ideal für private Momente im Freien
- Hochwertige Materialien und Bauweise:
- Massivbauweise mit Ziegel- und Stahlbeton sorgt für Stabilität und Langlebigkeit
- Ziegelmauerwerk und Stahlbetonwände bieten eine hervorragende Schalldämmung und Wärmeisolierung
- Die Flachdachkonstruktionen sind doppelt gedämmt und wasserresistent, um höchste Energieeffizienz und Schutz zu gewährleisten
- Exquisite Innenausstattung:
- Eichenparkett von Belgiqa, Modell Oak, in den Wohnräumen: robust, elegant und mit einer Naturholz-Nutzschicht für nachhaltige Schönheit
- Großformatige Feinsteinzeugfliesen von Marazzi in den Bädern und Vorzimmern – pflegeleicht und zeitlos
- Smarte Fußbodenheizung und Deckenkühlung, steuerbar per App, sorgen in jedem Raum für das ideale Klima
- Hochwertige Armaturen und Sanitäranlagen von Vallone und Frattini Narciso, ausgeführt in minimalistischen und eleganten Designs
- Technologische Ausstattung für maximalen Komfort:
- Smart-Home-System für Beleuchtung, Beschattung und Heizung, mit Steuerung über App und Wandpaneel – einfach, intuitiv und modern
- State-of-the-Art-Alarmsystem und Videogegensprechanlage für Ihre Sicherheit
- Wellness und Gemeinschaft:
- Gemeinschaftliche Sauna für die Bewohner der Anlage und direkter Zugang zum Schwimmteich für entspannende Wellness-Momente
- Schallgedämmte Wände und Decken sorgen für absolute Ruhe und Privatsphäre
- Energieeffizient und nachhaltig:
- Niedrigenergie-Fußbodenheizung und energiesparende Luftwärmepumpen bieten moderne und umweltfreundliche Heizlösungen
- Die PV-Anlage deckt zusätzlich einen Teil des Energiebedarfs und reduziert die Betriebskosten
- Energieausweis: HWB von 40,1 kWh/m²a (Klasse B) und fGEE von 0,57 (Klasse A+) – nachhaltig und umweltbewusst
Dieses Haus ist ein Meisterwerk moderner Baukunst und verbindet die Vorteile eines großen, Eigenheims mit den Vorzügen einer exklusiven Wohnanlage. Die Nähe zur Wiener Innenstadt und die exzellente Infrastruktur machen es zu einem idealen Zuhause für Familien und Paare, die Ruhe, Komfort und den Luxus der Natur direkt vor der Haustür genießen möchten.
Für genauere Informationen und ein unverbindliches Beratungsgespräch freuen wir uns auf Ihre Anfrage!
Ich freue mich auf Ihre Anfrage und stehe für weitere Informationen jederzeit zur Verfügung.
Mit besten Grüßen,
Amir Tarab, BA
at@wolfundsohn.com
Tel: +43 660 383 15 66
Wolf & Sohn Immobilien GmbH
www.wolfundsohn.com
Der Vermittler ist als Doppelmakler tätig.
Pläne
Lagebeschreibung
Perfekte Lage zwischen Natur und Stadt The River Terrace am Nordhang des Leopoldsbergs bietet nicht nur Ruhe und Privatsphäre, sondern auch direkten Zugang zu Wiens schönsten Naherholungsgebieten. Die nahegelegenen Weinberge, Wanderwege und der Wienerwald laden zu Freizeitaktivitäten und Spaziergängen in der Natur ein. Trotz dieser Idylle sind Sie hervorragend an die Stadt angebunden: Der Bus (Linie 38A) bringt Sie direkt zur S-Bahn-Station Heiligenstadt, von der aus Sie in kürzester Zeit ins Zentrum Wiens gelangen. Für Autofahrer ist die A22 nur wenige Minuten entfernt und ermöglicht eine schnelle Verbindung in die Innenstadt. In der Umgebung finden Sie alles, was Sie brauchen – von Supermärkten und Apotheken bis hin zu Schulen und Cafés. Hier verbindet sich naturnahes Wohnen ideal mit urbanem Komfort.
Anbieter kontaktieren
Weitere Objekte in diesem Projekt
Moderne Wohnidylle in Top-Lage: Erstbezug Einfamilienhaus mit Garten, Terrasse & Garage in 1190 Wien - nur 989.000,00 €!
Wohnfläche
Zimmer
Kaufpreis
Exklusives Wohnen in Toplage: Moderne Einfamilienhaus mit Garten, Terrassen und Garage in 1190 Wien - Erstbezug!
Wohnfläche
Zimmer
Kaufpreis
Exklusives Einfamilienhaus in Toplage von Wien - Erstbezug mit Garten, 2 Terrassen und hochwertiger Ausstattung
Wohnfläche
Zimmer
Kaufpreis
Moderne Einfamilienhaus-Oase in Top-Lage: Erstbezug mit Garten, Balkon, Terrasse, Garage - Wohnen auf höchstem Niveau!
Wohnfläche
Zimmer
Kaufpreis












