Beschreibung
Bezugsfertiges Wohnbauprojekt mit 80 Eigentums- und Vorsorgewohnungen auf Eigengrund mit Garten, Terrasse oder Balkon, Bus und Bahnhof in Gehweite.
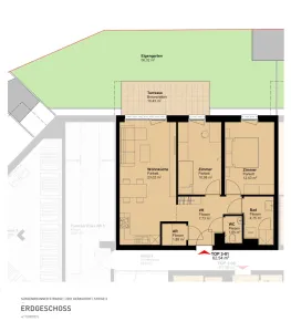
In Gerasdorf, am Rande des 21. Bezirks in Wien, entstehen 80 provisionsfreie Eigentumswohnungen. Die Größen liegen zwischen 41m² bis 69m² und umfassen 2 bzw. 3 Zimmer. Alle Einheiten verfügen über private Freiflächen wie Garten, Terrasse oder Balkon.
Erleben Sie die grüne Seite nahe Wien. Der Marchfeldkanal, mit seinen Rad- und Spazierwegen, bietet ein Naturparadies, nur 5 Autominuten entfernt. Ebenso die Badeteiche Süßenbrunn und Gerasdorf, wo Sie natürliches klares Wasser und eine weitläufige Liegewiese genießen können. Der nahe gelegene Golfclub Wien-Süßenbrunn ist eine gute Gelegenheit für alle Golf-Liebhaber und jene, die es werden möchten. Die angrenzende Umgebung Stammersdorf bietet ein schönes Ausflugsziel mit seinen Weinbergen und traditionellen Heurigen in idyllischen Gassen.
Tägliche Erledigungen liegen in der näheren Umgebung – Lebensmittelgeschäfte, Kindergarten, Schulen und Ärzte. Größere Einkäufe können im G3 Shopping Resort erledigt werden.
PKW-Stellplätze stehen in der hauseigenen Tiefgarage zur Verfügung.
Alle Wohnungen werden bezugsfertig übergeben, d.h. alle Sanitäranlagen, Fliesen und Parkettboden sind im Kaufpreis inkludiert. Details über die Ausstattung der Wohnungen entnehmen Sie gerne der Leistungsbeschreibung.
Sparen Sie jetzt bis zu 5,9% Nebengebühren!
Ihr Vorteil beim Erwerb einer Haring Group Immobilie:
- Provisionsfrei! Alle Eigentumsobjekte werden ohne Provision (3,6% inkl. MwSt.) angeboten!
- Keine Eintragungsgebühr: Von 1.7.2024 bis 1.7.2026 entfallen die Gebühren für die Grundbucheintragung (1,1%) und die Eintragungsgebühren des Pfandrechts (1,2%).*
* Laut Wohn- & Baupakat der Regierung entfallen die Eintragungsgebühren ins Grundbuch bei einem Kaufpreis von bis zu € 500.000,- pro Käufer:in komplett, wenn der Immobilienerwerg für den Hauptwohnsitz dient. Kaufen zwei Personen eine Immobilie, verdoppelt sich die Obergrenze auf € 1.000.000,-.
Wir weisen darauf hin, dass zwischen dem Vermittler und dem zu vermittelnden Dritten ein familiäres oder wirtschaftliches Naheverhältnis besteht.
Der Vermittler ist als Doppelmakler tätig.
Pläne
Anbieter kontaktieren
Weitere Objekte in diesem Projekt
PROVISIONSFREI - Bezugsfertig! Direkt einziehen und wohlfühlen!
Wohnfläche
Zimmer
Kaufpreis
PROVISIONSFREI - Bezugsfertig! Direkt einziehen und wohlfühlen!
Wohnfläche
Zimmer
Kaufpreis
PROVISIONSFREI - Bezugsfertig! Direkt einziehen und wohlfühlen!
Wohnfläche
Zimmer
Kaufpreis
PROVISIONSFREI - Bezugsfertig! Direkt einziehen und wohlfühlen!
Wohnfläche
Zimmer
Kaufpreis











