Beschreibung
DIE "VILLA VIOLA"
Privatsphäre, Selbstbestimmtheit und Unabhängigkeit sind nicht nur von unschätzbarem Wert, sie sind wahrer Luxus. Und zwar vor allem dann, wenn das eigene Zuhause zum Zentrum der Welt wird. Das Neubauprojekt Villa Viola in sonniger Hanglage, umgeben von sattem Grün, bietet auf 4 Ebenen ausreichend Platz für 8 exklusive Domizile. Die perfekt geplanten 2-, 3- und 4-Zimmer-Wohnungen bieten offene Wohnkonzepte, private Rückzugsorte in Form von Gärten und Terrassen und garantieren dabei optimale Bewegungsfreiheit. Persönliche Kellerabteile, ein Lift und eine Tiefgarage komplettieren die stimmige Gesamtvision.
Entscheidend ist nicht nur wie ein Projekt geplant ist, sondern auch wo. Das Projekt Villa Viola befindet sich im Westen der Landeshauptstadt, genauer gesagt in Kranebitten, einem Stadtteil, der sich durch eine hohe Lebensqualität und eine breite Palette an Infrastrukturmöglichkeiten auszeichnet. Eine unvergleichbare Kombination aus Natur und Urbanität. Die Menschen, die hier wohnen, können somit von einer idyllischen Umgebung und einem hohen Erholungswert profitieren. Ideal ist die Lage auch aufgrund ihrer optimalen Erreichbarkeit, ob mit dem Auto, dem Fahrrad als auch den öffentlichen Verkehrsmitteln (IVB Linie K), binnen weniger Fahrminuten erreichen Sie mühelos die Innenstadt aber auch die Inntalautobahn. Von Schulen und Kindergärten, die technische Universität, über Ärzte und Einkaufsmöglichkeiten werden keine Wünsche offengelassen.
FERTIGSTELLUNG SOMMER 2026 !!!
Verschaffen Sie sich einen Überblick des Projektes unter folgendem Link: UPDATE "Villa Viola"
LUXUS IM PENTHOUSE
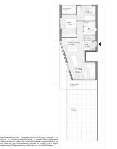
Top 08 ist die einzige Penthousewohnung der Villa Viola und befindet sich somit Dachgeschoß der Wohnanlage. Die luxuriöse 3-Zimmer-Wohnung mit 2 Terrassen, misst eine Nutzfläche von rd. 71m² zzgl. den großzügigen Außenflächen. Nach Südwesten ausgerichtet gelangt besonders viel natürliches Tageslicht in Ihr neues Zuhause.
Alle Wohn- und Schlafräume sind vollflächig mit einem Eichenholzboden ausgestattet. Vom größeren der beiden Schlafzimmer, haben Sie zudem Zugang auf eine vorgelagerte Terrasse mit rd. 4,5m².
Die große teilweise überdachte Süd-West-Ost-Terrasse mit rd. 69m², lässt Ihren Blick ins Ferne schweifen. Genießen Sie den Ausblick ins Ober- und Unterinntal, Sellraintal und auf das umliegende Bergpanorama direkt von Ihrem neuen zu Hause aus.
Das Badezimmer mit Fenster, verfügt über eine bodenbündige Dusche, einen Waschtisch, eine WC-Anlage sowie über einen Waschmaschinenanschluss.
Zwei Parkplätze in der hauseigenen Tiefgarage können zur Wohnung dazu erworben werden.
Erkennen Sie die Vorteile in Ihr eigenes Eigentum zu investieren:
- Auf Dauer kostengünstiger als Miete.
- Auf Dauer nachhaltiger als Miete.
- Die Wertsteigerung mitnehmen.
Vorschläge zur Finanzierung dieses Objektes liegen uns bereits vor.
FAZIT:
Eine durchdachte, lichtdurchflutete Penthousewohnung mit traumhaftem Ausblick und viel Platz für Ihre Lieben zum Wohlfühlen.
Weitere Details zur Wohnanlage und zur Wohnung selbst, besprechen wir am besten bei einem persönlichen Termin in unserem Büro.
Der Vermittler ist als Doppelmakler tätig.
Pläne
Lagebeschreibung
Das Bauvorhaben befindet sich in der Katastralgemeinde Hötting im westlichen Teil von Innsbruck, genauer gesagt im Stadtteil Hötting-West / Kranebitten. Früher assoziierte man diesen Stadtteil von Innsbruck mit der Kranebitter Allee, kleinen, alten Einfamilienhäusern und so manchen unschönen Blockbauten aus den siebziger und achtziger Jahren. Heut zutage steht dieses Viertel in einem ganz anderen Kontext. Moderne und architektonisch ansprechende Gebäude prägen das heutige Hötting West u. Kranebitten und machen es zu einer attraktiven Wohngegend für Jung und Junggebliebene. Das sehr sonnig gelegene Grundstück liegt in unmittelbarer Nähe zum Kranebitter Spielplatz bzw. oberhalb des Kranebitter Campingplatzes. Nahversorger, Kindergärten, ein Arzt und die Anbindung zu öffentlichen Verkehrsmitteln befinden sich in fußläufiger Reichweite. Mit der Buslinie K der IVB erreichen Sie in kürzester Zeit das Innsbrucker Stadtzentrum. Auch mit dem Fahrrad oder dem PKW befinden Sie sich nur wenige Minuten vom Stadtkern entfernt. Der nicht unweit hinter dem Grundstück beginnende Wald bietet zusätzliche Möglichkeiten zur Erholung und Freizeitgestaltung. Eine Wanderung oder eine Mountainbiketour z.B. zum bekannten Alpengasthof Rauschbrunnen oder zur Umbrüggler Alm auf der Nordkette, lassen sich einfach von zu Hause aus bzw. direkt vor Ihrer Haustüre starten.
Anbieter kontaktieren
Weitere Objekte in diesem Projekt
Nachhaltig investieren: 2-Zimmer-Anlegerwohnung im Neubau
Wohnfläche
Zimmer
Kaufpreis
"Villa Viola" Top 06 | 2-Zimmer-Wohnung für Singles oder Paare
Wohnfläche
Zimmer
Kaufpreis
"Villa Viola" Top 08 | 3-Zimmer-Penthousewohnung mit Panoramablick
Wohnfläche
Zimmer
"Villa Viola" Top 07 | 2-Zimmer-Wohnung für Singles oder Paare
Wohnfläche
Zimmer
Kaufpreis



